Kiadó vendéglátó egység Szolnok 625 000 Ft

Leírás


A
Szolnoki CasaNetWork ingatlaniroda bérlésre kínál egy 533m
2-es
épületet !


Az
ingatlan főbb jellemzői:

- Szolnok
Északi-nyugati
részén helyezkedik el, az 4-es
főút felhajtójától 1800 méterre


-
498 m2-en található,
kerítéssel teljesen körbehatárolt


-
a közművek közül víz, villany, gáz és csatorna is bevezetésre
került


-
az épület téglából készült

három
szintes
,
amely a következő képpen
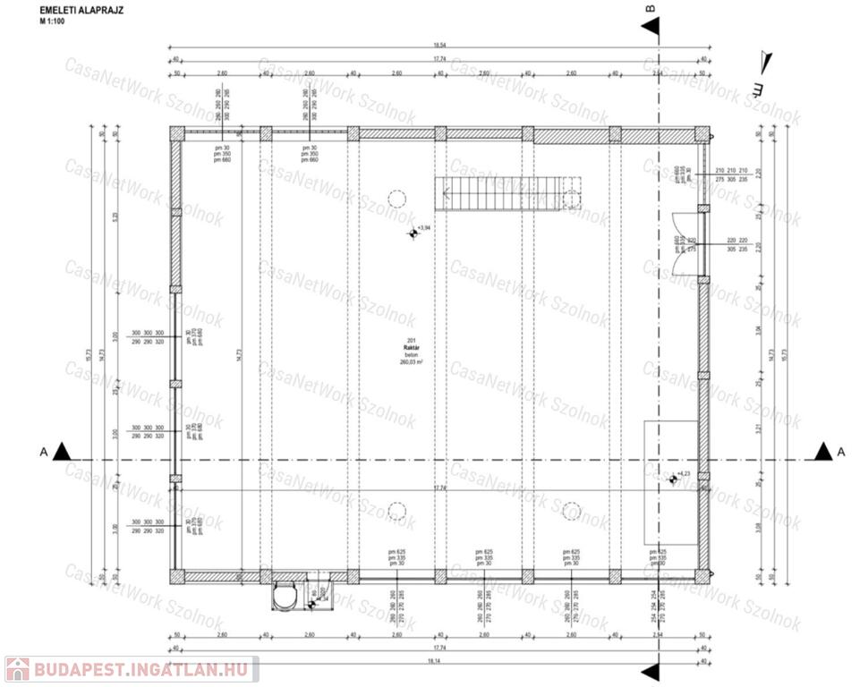
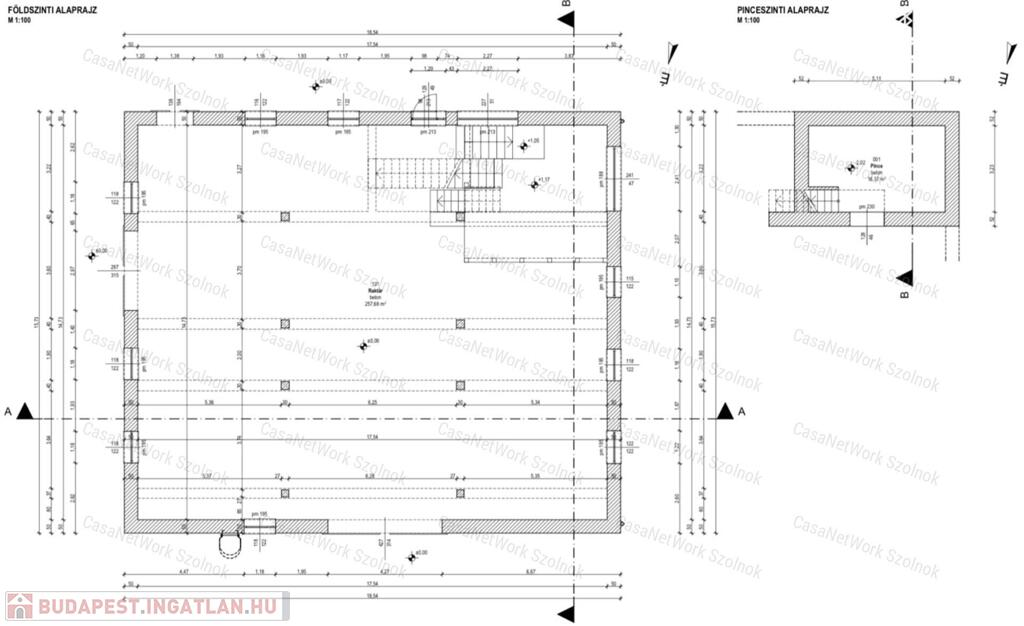
került kialakításra: pince 16 m2,
földszint 257 m2,
emelet 260 m2


-
a pince és a földszinti rész igényes felújításon esett át, a
földszinti rész ipari minőségű beton burkolatot kapott,
bevezetésre került a 220V és a 380V

az
áru mozgatását meggyorsítja 1 db ipari garázskapu és 1db
aut
omata
üveg ajtó

a
hűtést és fűtést 2db saját nagy teljesítményű split klíma
biztosítja ( 7,5 KW, 5,2 KW )

-
a parkolást 8
db kialakított magánparkoló
 segíti

-
a telephelyet éjszaka biztonsági
szolgálat őrzi

-
a létesítmény elhelyezkedéséből
és az adottságainak köszönhetően több célra is
alkalmas: üzlet,
raktár, üzem
 stb.

 Amennyiben
a fenti 155806435  -es
azonosító számú kiadó üzlethelyiség, vagy bármely
kínálatunkban található ingatlan felkeltette érdeklődését, kérem
hívjon bizalommal!


/A
hirdetésben szereplő információk a megbízótól kapott adatok
alapján készültek./


Irodánk
teljes körű szolgáltatással áll ügyfelei
rendelkezésére: hitelügyintézés, ügyvédi
szolgáltatás, ingatlan értékbecslés,
energetikai tanúsítvány készítése.

CasaNetWork
- Ingatlanban otthon vagyunk!




















Vendéglátó egység részletei

Ár: 625 000 Ft/hónap
Méret: 533 négyzetméter
Azonosító: 11577444
Irodai azonosító: 155806435
Ingatlan állapota: Újszerű
Helyiségek: 3

Így keressen budapesti ingatlant négy egyszerű lépésben. Csupán 2 perc, kötelezettségek nélkül!

Szűkítse a budapesti ingatlanok
listáját
Válassza ki a megfelelő
budapesti ingatlant
Írjon a hirdetőnek
Várjon a visszahívásra