Az értékesítő:
Garamvölgyi Gábor
+36 20 289 0849

Kiadó vendéglátó egység Szolnok, 625 000 Ft/hónap, 533 négyzetméter

625 000 Ft/hónap
vendéglátó egység, 533 négyzetméter
Ingatlan állapota:
Újszerű
Azonosító:
11577444
Értékesítés típusa:
kiadó
Ingatlan típusa:
vendéglátó egység
Település:
Szolnok
Alapterület:
533
Ár:
625 000 Ft/hónap
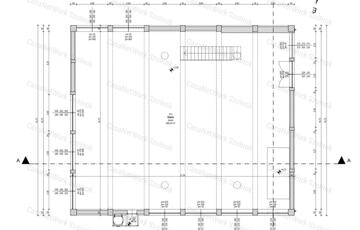
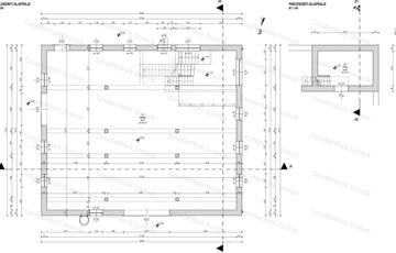
<p> <strong><strong>A Szolnoki CasaNetWork ingatlaniroda bérlésre kínál egy 533m</strong></strong><strong><strong><sup>2</sup></strong></strong><strong><strong>-es épületet !</strong></strong></p><p> Az ingatlan főbb jellemzői:</p><p>- Szolnok Északi-nyugati részén helyezkedik el, az <strong><strong>4-es főút felhajtójától 1800 méterre</strong></strong></p><p> - 498 m<sup>2</sup>-en található, kerítéssel teljesen körbehatárolt</p><p> - a közművek közül víz, villany, gáz és csatorna is bevezetésre került</p><p> - az épület téglából készült</p><p>- <strong><strong>három szintes</strong></strong>, amely a következő képpen került kialakításra: pince 16 m<sup>2</sup>, földszint 257 m<sup>2</sup>, emelet 260 m<sup>2</sup></p><p> - a pince és a földszinti rész igényes felújításon esett át, a földszinti rész ipari minőségű beton burkolatot kapott, bevezetésre került a 220V és a 380V</p><p>- <strong><strong>az áru mozgatását meggyorsítja 1 db ipari garázskapu és 1db aut</strong></strong><strong><strong>o</strong></strong><strong><strong>mata üveg ajtó</strong></strong></p><p>- <strong><strong>a hűtést és fűtést 2db saját nagy teljesítményű split klíma biztosítja ( 7,5 KW, 5,2 KW )</strong></strong></p><p>- a parkolást <strong><strong>8 db kialakított magánparkoló</strong></strong> segíti</p><p>- a telephelyet éjszaka <strong><strong>biztonsági szolgálat őrzi</strong></strong></p><p>- a létesítmény elhelyezkedéséből és az adottságainak köszönhetően több célra is alkalmas: <strong><strong>üzlet, raktár, üzem</strong></strong> stb.</p><p> Amennyiben a fenti <strong><strong>155806435</strong></strong>  -es azonosító számú kiadó üzlethelyiség, vagy bármely kínálatunkban található ingatlan felkeltette érdeklődését, kérem hívjon bizalommal!</p><p> /A hirdetésben szereplő információk a megbízótól kapott adatok alapján készültek./</p><p> Irodánk teljes körű szolgáltatással áll ügyfelei rendelkezésére: hitelügyintézés, ügyvédi szolgáltatás, ingatlan értékbecslés, energetikai tanúsítvány készítése.</p><p><strong><strong>CasaNetWork - Ingatlanban otthon vagyunk!</strong></strong></p> <br />
https://budapest.ingatlan.hu/kiado/vendeglato_egyseg/szolnok/625-ezer-ft;533-negyzetmeter;nincs-megadva-jellegu;nincs-megadva-tulajdonviszony/11577444