Kiadó iroda/üzlethelyiség Gödöllő 230 000 Ft

Leírás

Nagy forgalmú helyen a Dózsa Gy úton (Szilhát utca sarkán)  tásasasházi lakás IRODA / SZALON / RENDELŐ céljára KIADÓ,  hosszútávra.  Vállalkozás, cég számára is bérelhető. 

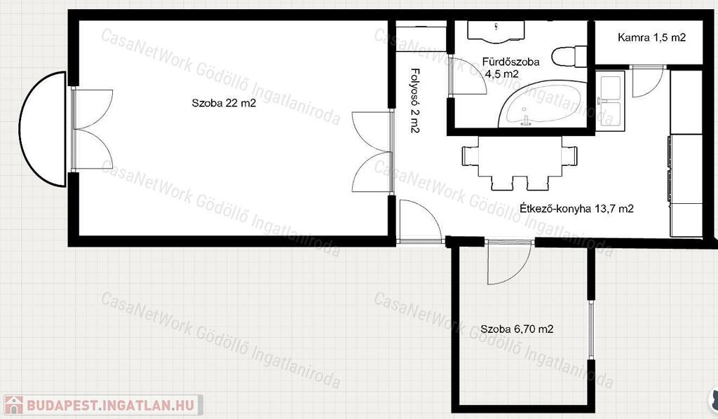
Egy világos nagy szoba erkéllyel,  és egy félszoba áll rendelkezésre. Tágas előszoba és vendégváró céljára használható az étkező. A konyha berendezett. 

Az ablakok jól szigetelő thermo üveggel és  redőnnyel felszereltek.

Kondenzációs gázkazán biztosítja a fűtést,minden egyedi mérés alapján fizetendő. Alacsony a közös költsége 12,500 Ft/hó. 

1 gépkocsi részére van felszínii beálló, ami sorompóval lezárt. 

Iroda/üzlethelyiség részletei

Ár: 230 000 Ft/hónap
Méret: 51 négyzetméter
Azonosító: 11597518
Irodai azonosító: 166401948
Jelleg: iroda
Helyiségek: 2

Így keressen budapesti ingatlant négy egyszerű lépésben. Csupán 2 perc, kötelezettségek nélkül!

Szűkítse a budapesti ingatlanok
listáját
Válassza ki a megfelelő
budapesti ingatlant
Írjon a hirdetőnek
Várjon a visszahívásra