Az értékesítő:
Szilágyi Krisztina
+36 20 509 2022

Kiadó iroda/üzlethelyiség Gödöllő, 230 000 Ft/hónap, 51 négyzetméter

230 000 Ft/hónap
iroda/üzlethelyiség, 51 négyzetméter
Azonosító:
11597518
Értékesítés típusa:
kiadó
Ingatlan típusa:
iroda/üzlethelyiség
Jelleg:
Iroda
Település:
Gödöllő
Alapterület:
51
Ár:
230 000 Ft/hónap
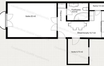
<p>Nagy forgalmú helyen a Dózsa Gy úton (Szilhát utca sarkán)  tásasasházi lakás IRODA / SZALON / RENDELŐ céljára KIADÓ,  hosszútávra.  Vállalkozás, cég számára is bérelhető. </p><p>Egy világos nagy szoba erkéllyel,  és egy félszoba áll rendelkezésre. Tágas előszoba és vendégváró céljára használható az étkező. A konyha berendezett. </p><p>Az ablakok jól szigetelő thermo üveggel és  redőnnyel felszereltek.</p><p>Kondenzációs gázkazán biztosítja a fűtést,minden egyedi mérés alapján fizetendő. Alacsony a közös költsége 12,500 Ft/hó. </p><p>1 gépkocsi részére van felszínii beálló, ami sorompóval lezárt. </p>
https://budapest.ingatlan.hu/kiado/iroda/godollo/230-ezer-ft;51-negyzetmeter;iroda-jellegu;nincs-megadva-berendezett/11597518