Eladó telek/földterület Balatonfüred 65 000 000 Ft

Leírás

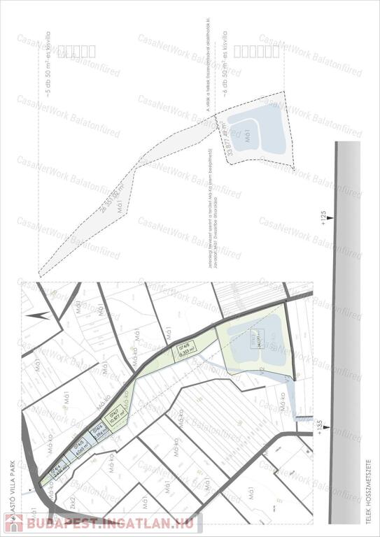
A CASANETWORK BALATONFÜRED Ingatlaniroda eladásra kínálja a 2822. számú, kiváló lehetőségekkel bíró: 

2 db természetes vízgyűjtő tó és egy nagy méretű halastó kialakítására alkalmas mezőgazdasági terület ELADÓ.

A balatonfüredi mezőgazdasági terület jellemzői:

-72.921 m2 Má-ko1 besorolású

-víz kútfúrással megoldható a területre, villany napelemmel, de a közelben is leköthető

-könnyű megközelíthetőség, izolált zöld környezetben, lakó szomszéd nincs

- telek nagyságából adódóan akár befektetésnek is alkalmas

- Balaton, vasútállomás, buszmegálló, bevásárlási lehetőség, strandfürdő szintén pár percre

- biztonságos, barátságos, nyugodt környék, kivételes adottságával várja új gazdáját.

Amennyiben felkeltette érdeklődését a 2822. számú Balatonfüreden vagy bármely, kínálatunkban található beépíthető telek, hívjon

a megadott számon.

0630 2454116

Vásárolna, de nincs rá keret? Kollégám díjmentes, bank semleges hitel, valamint jogi tanácsadással állunk rendelkezésére.

CasaNetWork - A civilizált ingatlanértékesítés artériája!”

Telek/földterület részletei

Ár: 65 000 000 Ft
Méret: 72 921 Négyzetméter
Azonosító: 11600257
Irodai azonosító: 163802822
Telek: 72921 Négyzetméter
Villany: Utcában

Így keressen budapesti ingatlant négy egyszerű lépésben. Csupán 2 perc, kötelezettségek nélkül!

Szűkítse a budapesti ingatlanok
listáját
Válassza ki a megfelelő
budapesti ingatlant
Írjon a hirdetőnek
Várjon a visszahívásra