Eladó lakás Budapest X. ker 55 000 000 Ft

Leírás

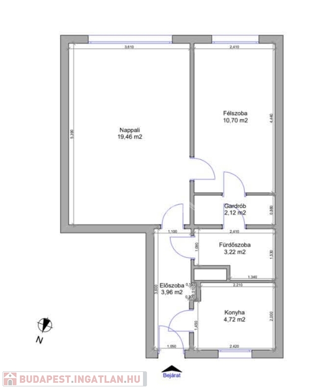
X. Ker Kőrösi Csoma Sándor úton 44nm-es két szobas 7.emeleti panellakást kínálunk eladásra.
A lakás Tehermentes, azonnal birtokba vehető.
A minősítésű energetikai besorolást kapott a kiválóan szigetelő nyílászárók miatt.
A társasház szigetelése is kiváló.
Karbantartott.
A ház nem panelprogramos.
Távfűtéses.
Meleg világos lakás.
Fürdőszoba tusolós.
A szobák külön és egybe is nyilnak, 20 ill. 10nm-esek.
Gardrób is kapcsolódik a kisebbik szobához.
Távfűtés átalány 9500ft
Villány, víz saját mérős.
Közös költség 10200ft.

Lakás részletei

Ár: 55 000 000 Ft
Méret: 44 négyzetméter
Azonosító: 11575040
Irodai azonosító: 388945
Cím: Kőrösi Csoma Sándor út
Emelet: 7. emelet
Építőanyag: Panel
Fűtés jellege: Távfűtés
Ingatlan állapota: Felújított
Komfort fokozat: Összkomfort
Építési év: 50 évesnél régebbi
Tulajdonviszony: Saját
Kilátás: panorámás
Egész szobák: 2

Egyéb jellemzők

  • Erkély
  • Garázs
  • Lift
  • Pince
  • Tároló

Térkép


Így keressen budapesti ingatlant négy egyszerű lépésben. Csupán 2 perc, kötelezettségek nélkül!

Szűkítse a budapesti ingatlanok
listáját
Válassza ki a megfelelő
budapesti ingatlant
Írjon a hirdetőnek
Várjon a visszahívásra