Az értékesítő:
Somogyi Nikoletta
+36 70 605 0504

Eladó lakás Budapest X. ker, 55 000 000 Ft, 44 négyzetméter

55 000 000 Ft
lakás, 44 négyzetméter
Építőanyag:
Panel
Egész szobák:
2
Komfort fokozat:
Összkomfort
Ingatlan állapota:
Felújított
Azonosító:
11575040
Értékesítés típusa:
eladó
Ingatlan típusa:
lakás
Település:
Budapest X. ker
Alapterület:
44
Ár:
55 000 000 Ft
Tulajdonviszony:
Saját
Emelet:
7. emelet
Fűtés jellege:
Távfűtés
Kilátás:
panorámás
Építési év:
50 évesnél régebbi
Erkély:
Nincs
Pince:
Nincs
Tároló:
Nincs
Lift:
Van
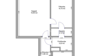
X. Ker Kőrösi Csoma Sándor úton 44nm-es két szobas 7.emeleti panellakást kínálunk eladásra. A lakás Tehermentes, azonnal birtokba vehető. A minősítésű energetikai besorolást kapott a kiválóan szigetelő nyílászárók miatt. A társasház szigetelése is kiváló. Karbantartott. A ház nem panelprogramos. Távfűtéses. Meleg világos lakás. Fürdőszoba tusolós. A szobák külön és egybe is nyilnak, 20 ill. 10nm-esek. Gardrób is kapcsolódik a kisebbik szobához. Távfűtés átalány 9500ft Villány, víz saját mérős. Közös költség 10200ft.
https://budapest.ingatlan.hu/elado/lakas/budapest-x-ker/55-millio-ft;44-negyzetmeter;2-szoba;panel-epitesu/11575040