Eladó családi ház Zamárdi 115 000 000 Ft

Leírás

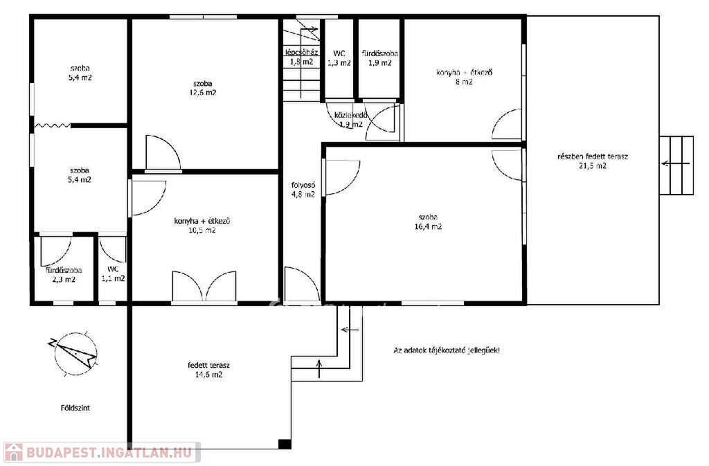
Balaton déli parton, Zamárdiban, 168 m2-es családi ház, 845 m2-es telken eladó. Az ingatlan a település üdülőövezetében helyezkedik el, gyalog 5 percre a Balaton-parttól. A családi házban egy földszintes, önálló lakóegység és egy két szintes, 5 szobával rendelkező rész került kialakításra, melyben mindegyik szoba saját mosdóval rendelkezik. Az ingatlan összközműves, fűtése gázkonvektorokkal megoldott. A belső lakóteret hangulatos teraszok és erkély növelik, a hatalmas telek pedig számos további lehetőséget nyújt a hasznosításra. A 16,2 m2-es, jelenleg 2 helyiségből álló melléképület tárolóként, garázsként vagy akár további lakóegységként is kialakítható. A tágas kertben dísznövények, gyümölcsfák (körte, szilva, barack, mogyoró, füge, szőlő), kerti zuhanyzó, pingpongasztal és kosárpalánk is segíti a pihenést, kikapcsolódást. Az ingatlan azonnal használatba vehető, de korszerűsítéssel kiváló lehetőség nagycsaládoknak, több generációs családoknak, vagy befektetési céllal részben vagy egészben kiadásra, nyaraltatásra, üzleti vállalkozásra is. A parkolás jelenleg zárt kocsibeállón, valamint a közterületen ingyenesen lehetséges. Szabadstrand, étterem, bolt, fagyizó, vasútállomás párszáz méteren belül elérhető. Bővebb információért keressen telefonon! M326633

Referencia szám: M326633

Családi ház részletei

Ár: 115 000 000 Ft
Méret: 168 négyzetméter
Azonosító: 11615012
Irodai azonosító: M326633-5209922
Telek: 845 négyzetméter
Ingatlan állapota: Átlagos
Jelleg: családi ház
Építőanyag: Tégla
Fűtés jellege: Konvektoros
Fűtés módja: Gáz
Komfort fokozat: Komfort
Kor: 21-50 éves
Szintek száma: 1 szint
Egész szobák: 6
Fél szobák: 2

Egyéb jellemzők

  • Garázs

Térkép


Így keressen budapesti ingatlant négy egyszerű lépésben. Csupán 2 perc, kötelezettségek nélkül!

Szűkítse a budapesti ingatlanok
listáját
Válassza ki a megfelelő
budapesti ingatlant
Írjon a hirdetőnek
Várjon a visszahívásra