Az értékesítő:
Szűcs Adrienn
+36 70 698 5169

Eladó családi ház Zamárdi, 115 000 000 Ft, 168 négyzetméter

115 000 000 Ft
családi ház, 168 négyzetméter
Építőanyag:
Tégla
Egész szobák:
6
Komfort fokozat:
Komfort
Fűtés módja:
Gáz
Ingatlan állapota:
Átlagos
Azonosító:
11615012
Értékesítés típusa:
eladó
Ingatlan típusa:
családi ház
Jelleg:
Családi ház
Település:
Zamárdi
Alapterület:
168
Telekterület:
845
Ár:
115 000 000 Ft
Szintek száma:
1 szint
Fűtés jellege:
Konvektoros
Kor:
21-50 éves
Erkély:
Van
Telekterület típusa:
négyzetméter
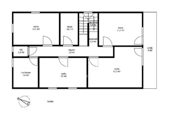
Balaton déli parton, Zamárdiban, 168 m2-es családi ház, 845 m2-es telken eladó. Az ingatlan a település üdülőövezetében helyezkedik el, gyalog 5 percre a Balaton-parttól. A családi házban egy földszintes, önálló lakóegység és egy két szintes, 5 szobával rendelkező rész került kialakításra, melyben mindegyik szoba saját mosdóval rendelkezik. Az ingatlan összközműves, fűtése gázkonvektorokkal megoldott. A belső lakóteret hangulatos teraszok és erkély növelik, a hatalmas telek pedig számos további lehetőséget nyújt a hasznosításra. A 16,2 m2-es, jelenleg 2 helyiségből álló melléképület tárolóként, garázsként vagy akár további lakóegységként is kialakítható. A tágas kertben dísznövények, gyümölcsfák (körte, szilva, barack, mogyoró, füge, szőlő), kerti zuhanyzó, pingpongasztal és kosárpalánk is segíti a pihenést, kikapcsolódást. Az ingatlan azonnal használatba vehető, de korszerűsítéssel kiváló lehetőség nagycsaládoknak, több generációs családoknak, vagy befektetési céllal részben vagy egészben kiadásra, nyaraltatásra, üzleti vállalkozásra is. A parkolás jelenleg zárt kocsibeállón, valamint a közterületen ingyenesen lehetséges. Szabadstrand, étterem, bolt, fagyizó, vasútállomás párszáz méteren belül elérhető. Bővebb információért keressen telefonon! M326633 Referencia szám: M326633
https://budapest.ingatlan.hu/elado/haz/zamardi/115-millio-ft;168-negyzetmeter;8-szoba;konvektoros-futes/11615012