Eladó családi ház Salgótarján 59 000 000 Ft

Leírás

Eladó felújított családi ház Salgótarján "Rózsadombján"!!

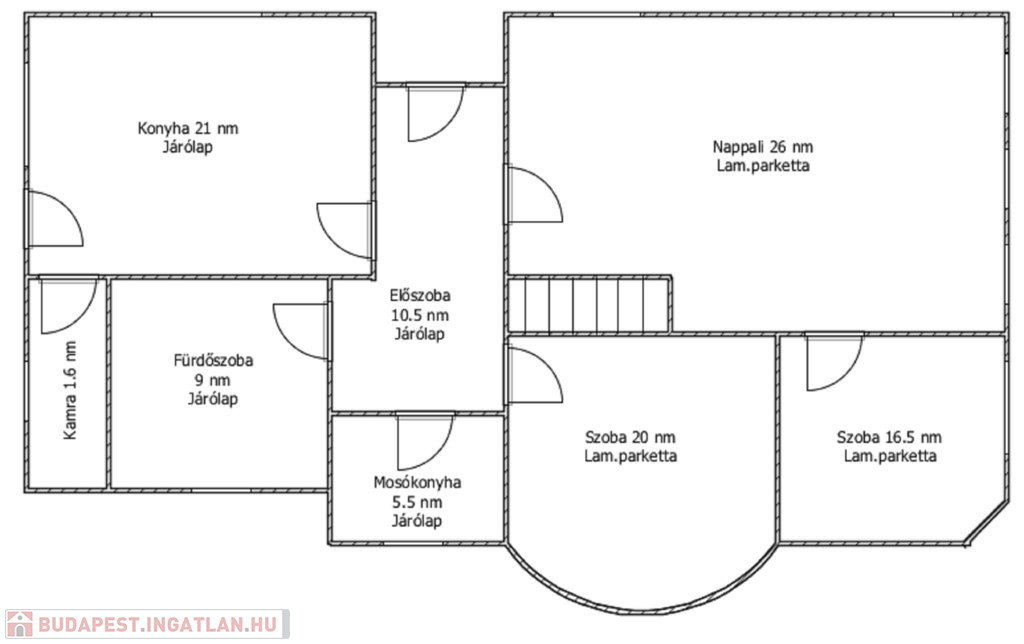
Álmai otthonát keresi? Ne keressen tovább! Eladásra kínálunk egy kivételes, 2020-ban 90 %-os készültségi fokig felújított, 180 nm-es, 2 szintes családi házat, Salgótarján kiemelt lakóövezetében.

Főbb jellemzők:

- Lokáció: Belvárostól 5 perc autóútra, a Hunyadi krt. tetején található. Budai hegyvidéket idéző környezetben.
- Lakótér: nappali+ 4 hálószoba, egyedi konyha prémium anyagokból.
- Fürdőszoba: modern kialakítású, teljesen felszerelt, sarokkáddal és zuhanyzóval (Ravak).
- Komfort: Padlófűtés, új villamos -és vízvezeték hálózat, riasztó rendszer, traventin mészkő párkányok.
- Modern technológia: Három fázisú áram (3X16 A), modern 36 KW-os kombi gázkazán, 3 rétegű, műanyag ablakok.
- Kültér: 1600 nm-es sík, panorámás telek, terasz, udvari gépjárműbeálló, 35 nm-es garázsalap.

Az ingatlan alacsony fenntartási költségekkel rendelkezik, köszönhetően a külső hőszigetelésnek (15 cm) és az energiahatékony megoldásoknak.

A külső homlokzat színezése, a tetőhéjazat cseréje és a tetőtéri lakrész befejezése, az új tulajdonos feladata lesz.

A kiváló közlekedésnek köszönhetően a város bármely pontja könnyen elérhető, miközben a csendes utca nyugalmat biztosít a mindennapokban.
(További képekért és információkért kérem hívjon!)

Családi ház részletei

Ár: 59 000 000 Ft
Méret: 180 négyzetméter
Azonosító: 11598100
Irodai azonosító: 379874
Telek: 1600 négyzetméter
Ingatlan állapota: Felújított
Jelleg: családi ház
Építőanyag: Tégla
Fűtés jellege: Cirkó
Egész szobák: 5
Nappalik: 1

Egyéb jellemzők

  • Beépíthető tetőtér
  • Csatorna
  • Garázs
  • Melléképület
  • Pince
  • Terasz

Így keressen budapesti ingatlant négy egyszerű lépésben. Csupán 2 perc, kötelezettségek nélkül!

Szűkítse a budapesti ingatlanok
listáját
Válassza ki a megfelelő
budapesti ingatlant
Írjon a hirdetőnek
Várjon a visszahívásra