Az értékesítő:
Tatár Tamás
+36 70 439 8123

Eladó családi ház Salgótarján, 59 000 000 Ft, 180 négyzetméter

59 000 000 Ft
családi ház, 180 négyzetméter
Építőanyag:
Tégla
Egész szobák:
5
Ingatlan állapota:
Felújított
Azonosító:
11598100
Értékesítés típusa:
eladó
Ingatlan típusa:
családi ház
Jelleg:
Családi ház
Település:
Salgótarján
Alapterület:
180
Telekterület:
1600
Ár:
59 000 000 Ft
Fűtés jellege:
Cirkó
Terasz:
Nincs
Erkély:
Nincs
Beépíthető tetőtér:
Nincs
Melléképület:
Nincs
Pince:
Nincs
Klíma:
Nincs
Telekterület típusa:
négyzetméter
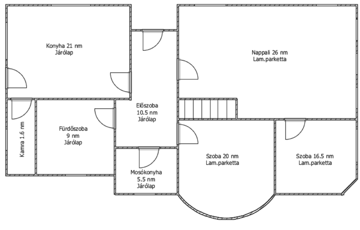
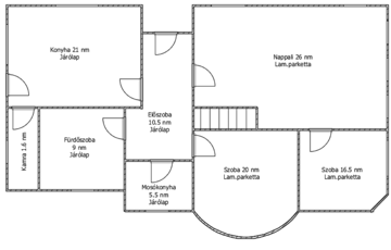
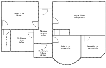
Eladó felújított családi ház Salgótarján "Rózsadombján"!! Álmai otthonát keresi? Ne keressen tovább! Eladásra kínálunk egy kivételes, 2020-ban 90 %-os készültségi fokig felújított, 180 nm-es, 2 szintes családi házat, Salgótarján kiemelt lakóövezetében. Főbb jellemzők: - Lokáció: Belvárostól 5 perc autóútra, a Hunyadi krt. tetején található. Budai hegyvidéket idéző környezetben. - Lakótér: nappali+ 4 hálószoba, egyedi konyha prémium anyagokból. - Fürdőszoba: modern kialakítású, teljesen felszerelt, sarokkáddal és zuhanyzóval (Ravak). - Komfort: Padlófűtés, új villamos -és vízvezeték hálózat, riasztó rendszer, traventin mészkő párkányok. - Modern technológia: Három fázisú áram (3X16 A), modern 36 KW-os kombi gázkazán, 3 rétegű, műanyag ablakok. - Kültér: 1600 nm-es sík, panorámás telek, terasz, udvari gépjárműbeálló, 35 nm-es garázsalap. Az ingatlan alacsony fenntartási költségekkel rendelkezik, köszönhetően a külső hőszigetelésnek (15 cm) és az energiahatékony megoldásoknak. A külső homlokzat színezése, a tetőhéjazat cseréje és a tetőtéri lakrész befejezése, az új tulajdonos feladata lesz. A kiváló közlekedésnek köszönhetően a város bármely pontja könnyen elérhető, miközben a csendes utca nyugalmat biztosít a mindennapokban. (További képekért és információkért kérem hívjon!)
https://budapest.ingatlan.hu/elado/haz/salgotarjan/59-millio-ft;180-negyzetmeter;5-szoba;cirko-futes/11598100