Eladó családi ház Göd 165 900 000 Ft

Leírás

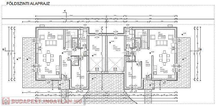
Alsógöd kertvárosában kínálunk eladásra két újépítésű, 166 m²-es családi házat, amelyhez 744 m²-es, külön elkerített kert tartozik.

A két lakóegység egy telken belül helyezkedik el, a megközelítés közös használatú magánúton történik, a házak ettől függetlenül önálló bejárattal és külön garázzsal rendelkeznek.

Az épület 30 cm-es téglafalazattal készül, 10 cm vastag külső dryvit hőszigeteléssel. A tető betoncserép fedést kap.

Az ingatlan korszerű műszaki tartalommal épül, a fűtést hőszivattyús rendszer biztosítja, a hőleadás padlófűtéssel történik. Az egész éves komfortot tovább növeli a 2 db inverteres klímaberendezés, melyek a vételár részét képezik, így az üzemeltetés energiatakarékos és kényelmes.

A külső nyílászárók műanyag szerkezetűek, hőszigetelő üvegezéssel kerülnek beépítésre, hozzájárulva az alacsony fenntartási költségekhez.

A lakótér tágas, jól átgondolt elrendezésű, kifejezetten családi életre tervezve.

Elosztása:

Földszint: Amerikai konyhás nappali, hálószoba, fürdőszoba, WC, garázs.

Emelet: 3 db Hálószoba, fürdőszoba, gépészeti helyiség és egy fedett terasz.

Az újépítés előnye, hogy nem igényel felújítást, azonnal költözhető állapotban van. A 744 m²-es, leválasztott kert valóban saját használatú, alkalmas pihenésre, gyerekeknek, kerti programokra vagy akár további fejlesztésekre is.

Várható átadás: 2026.December-2027.Január

Jelen esetben foglalózás után, hideg meleg burkolatok, beltéri nyílászárók, szaniterek választhatóak melyek a meghirdetett ár részét képezik a belső műszaki tartalom szerint.

Megtekintés érdekében vagy felmerülő kérdés esetén keresse irodánkat.

A hirdetésben szereplő adatok tájékoztató jellegűek.

Az ingatlan hitelre is megvásárolható. Bankfüggetlen tanácsadóink, az ország összes pénzintézete közül gyorsan és gördülékenyen találja meg az Önnek legmegfelelőbb konstrukciót, egyedi kedvezményekkel. A hitel és az ingatlan közvetítés vevőink részére díjmentes.

Családi ház részletei

Ár: 165 900 000 Ft
Méret: 166 négyzetméter
Azonosító: 11601285
Irodai azonosító: 24835
Telek: 744 négyzetméter
Ingatlan állapota: Épülő
Jelleg: családi ház
Építőanyag: Kérdezzen rá a hirdetőtől »
Fűtés jellege: Egyéb
Szintek száma: 1 szint
Egész szobák: 5

Így keressen budapesti ingatlant négy egyszerű lépésben. Csupán 2 perc, kötelezettségek nélkül!

Szűkítse a budapesti ingatlanok
listáját
Válassza ki a megfelelő
budapesti ingatlant
Írjon a hirdetőnek
Várjon a visszahívásra