Az értékesítő:
Vede Casa Kft.
+36 30 109 6915

Eladó családi ház Göd, 165 900 000 Ft, 166 négyzetméter

165 900 000 Ft
családi ház, 166 négyzetméter
Egész szobák:
5
Ingatlan állapota:
Épülő
Azonosító:
11601285
Értékesítés típusa:
eladó
Ingatlan típusa:
családi ház
Jelleg:
Családi ház
Település:
Göd
Alapterület:
166
Telekterület:
744
Ár:
165 900 000 Ft
Szintek száma:
1 szint
Fűtés jellege:
Egyéb
Telekterület típusa:
négyzetméter
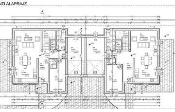
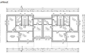
Alsógöd kertvárosában kínálunk eladásra két újépítésű, 166 m²-es családi házat, amelyhez 744 m²-es, külön elkerített kert tartozik. A két lakóegység egy telken belül helyezkedik el, a megközelítés közös használatú magánúton történik, a házak ettől függetlenül önálló bejárattal és külön garázzsal rendelkeznek. Az épület 30 cm-es téglafalazattal készül, 10 cm vastag külső dryvit hőszigeteléssel. A tető betoncserép fedést kap. Az ingatlan korszerű műszaki tartalommal épül, a fűtést hőszivattyús rendszer biztosítja, a hőleadás padlófűtéssel történik. Az egész éves komfortot tovább növeli a 2 db inverteres klímaberendezés, melyek a vételár részét képezik, így az üzemeltetés energiatakarékos és kényelmes. A külső nyílászárók műanyag szerkezetűek, hőszigetelő üvegezéssel kerülnek beépítésre, hozzájárulva az alacsony fenntartási költségekhez. A lakótér tágas, jól átgondolt elrendezésű, kifejezetten családi életre tervezve. Elosztása: Földszint: Amerikai konyhás nappali, hálószoba, fürdőszoba, WC, garázs. Emelet: 3 db Hálószoba, fürdőszoba, gépészeti helyiség és egy fedett terasz. Az újépítés előnye, hogy nem igényel felújítást, azonnal költözhető állapotban van. A 744 m²-es, leválasztott kert valóban saját használatú, alkalmas pihenésre, gyerekeknek, kerti programokra vagy akár további fejlesztésekre is. Várható átadás: 2026.December-2027.Január Jelen esetben foglalózás után, hideg meleg burkolatok, beltéri nyílászárók, szaniterek választhatóak melyek a meghirdetett ár részét képezik a belső műszaki tartalom szerint. Megtekintés érdekében vagy felmerülő kérdés esetén keresse irodánkat. A hirdetésben szereplő adatok tájékoztató jellegűek. Az ingatlan hitelre is megvásárolható. Bankfüggetlen tanácsadóink, az ország összes pénzintézete közül gyorsan és gördülékenyen találja meg az Önnek legmegfelelőbb konstrukciót, egyedi kedvezményekkel. A hitel és az ingatlan közvetítés vevőink részére díjmentes.
https://budapest.ingatlan.hu/elado/haz/god/166-millio-ft;166-negyzetmeter;5-szoba;egyeb-futes/11601285