Eladó családi ház Budapest XXII. ker 169 000 000 Ft

Leírás

ÚJ AJÁNLAT A KÍNÁLATUNKBAN!

XXII. kerület Óhegy kertvárosias környezetében, összesen 788 m2-es telken épülő 2 db 135 m2-es hasznos alapterületű, 5 szobás, saját garázzsal rendelkező, nagy teraszos "A" és "B" jelű házat kínálunk megvételre.

Mindkét ház ALAPRAJZA, TELEK MÉRETE, KIVITELEZÉSE AZONOS !

A megvételre kínált:
"A" és "B" jelű ingatlan KULCSRAKÉSZ ÁRA : 169 millió Ft

Az ingatlanok saját 394 m2-es szeparált telek résszel, egyállásos garázzsal, térkövezett kocsibeállóval, külön mérőórákkal rendelkeznek.

Helyiségei:
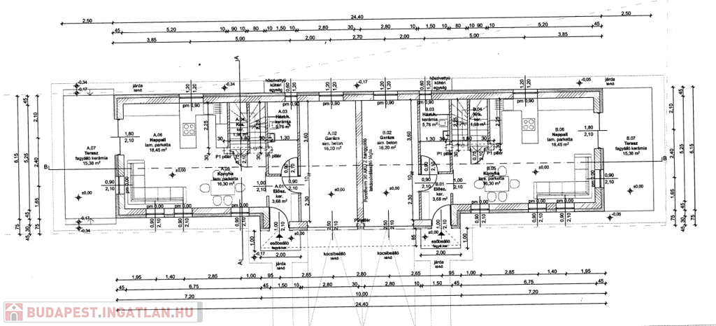
FÖLDSZINTEN: előszoba 3,68 m2, garázs 16,20 m2, fürdőszoba 5,76 m2,
amerikai nappali+konyha 34,75 m2, terasz 15,38 m2.

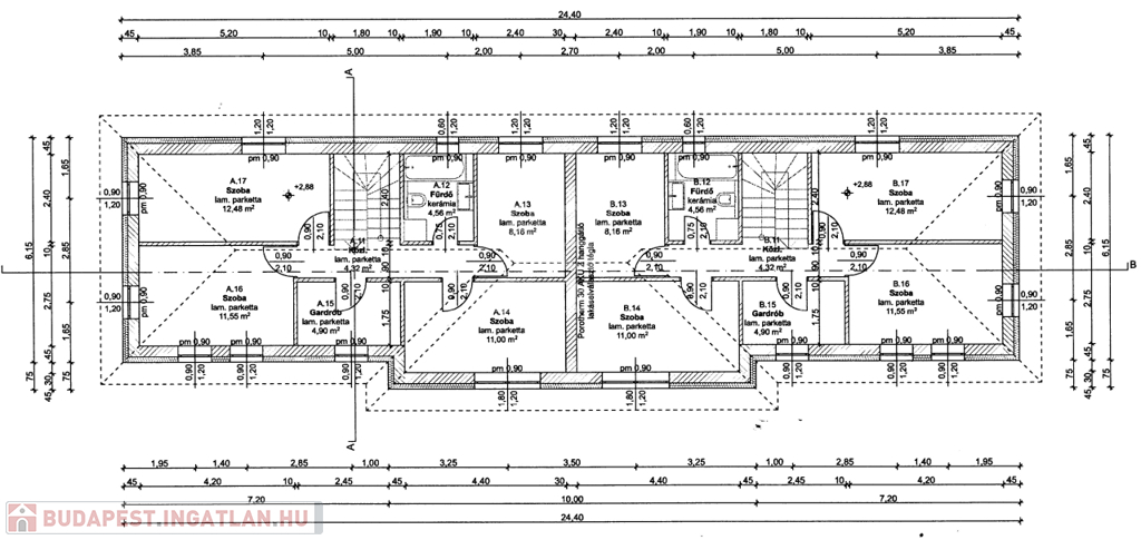
EMELETEN: közlekedő 4,32 m2, fürdőszoba 4,56 m2, 4 szoba (11,55 m2,
12,48 m2, 8,16 m2, 11 m2) plusz gardrób szoba 4,9 m2.

MÉRETEKET, ELRENDEZÉST lásd az ALAPRAJZOKON!

MŰSZAKI TARTALOM RÉSZLET:
-Porotherm 30-as falazat 15 cm külső homlokzati szigeteléssel
-25 cm tetőszigetelés, 12 cm lábazat xps szigetelés
-Leier betoncserép, csatorna rendszerrel
-3 rétegű üvegezéssel ellátott műanyag nyílászárók
-elektromos alumínium redőnyök szúnyoghálóval felszerelve
-minden helyiségben padlófűtés, helyiségenként szabályozható osztógyűjtővel
-Hőszivattyú 10 KW
-Vízmelegítő: ARISTON LYDOS HYBRID 100L hőszivattyús
-Villamos energia 1x32A, 2x16A H tarifás mérőórával
-2 db 3,5 KW hűtő-fűtő KLIMA berendezés
-szárnyas kerítés kiskapuval elektromos nyitás - zárás

Átadás előtt tereprendezésre kerül sor, építési törmelék elszállítás, talaj kiegyenlítéssel.

TERVEZETT ÁTADÁS IDŐPONTJA : 2026. szeptember 30.

A házak önálló mérőórákkal, használatbavételi engedéllyel, társasház alapító okirattal és H-tarifás villanyórával kerülnek átadásra.

A környék lokációja jó, közelben található iskola, óvoda, bölcsőde.
Bevásárlási lehetőségek autóval 5-10 percre ALDI, LIDL, CAMPONA bevásárlóközpont.
Autóbusz megállók sétatávolságra elérhetők (213,114,214,287)
Kelenföldi pályaudvar busszal 25 perc távolságra az ingatlantól.

Részletes műszaki dokumentációval rendelkezem !

Az ingatlan megtekintése előre egyeztetett időpontban lehetséges.
VÁROM HÍVÁSÁT, TOVÁBBI KÉRDÉSEIVEL KAPCSOLATBAN JELENTKEZÉSÉT !
(G.I.)

Családi ház részletei

Ár: 169 000 000 Ft
Méret: 135 négyzetméter
Azonosító: 11599071
Irodai azonosító: 392603
Cím: ÚJ ÉPÍTÉSŰ IKERHÁZ, GARÁZZSAL!
Telek: 394 négyzetméter
Ingatlan állapota: Kitűnő
Jelleg: ikerház
Építőanyag: Tégla
Fűtés jellege: Geotermikus
Fűtés módja: Hőszivattyú
Komfort fokozat: Dupla komfort
Kor: Új építésű
Szintek száma: 1 szint
Egész szobák: 5

Egyéb jellemzők

  • Csatorna
  • Garázs
  • Pince
  • Terasz

Térkép


Így keressen budapesti ingatlant négy egyszerű lépésben. Csupán 2 perc, kötelezettségek nélkül!

Szűkítse a budapesti ingatlanok
listáját
Válassza ki a megfelelő
budapesti ingatlant
Írjon a hirdetőnek
Várjon a visszahívásra