Eladó családi ház Budapest II. ker 298 000 000 Ft

Leírás

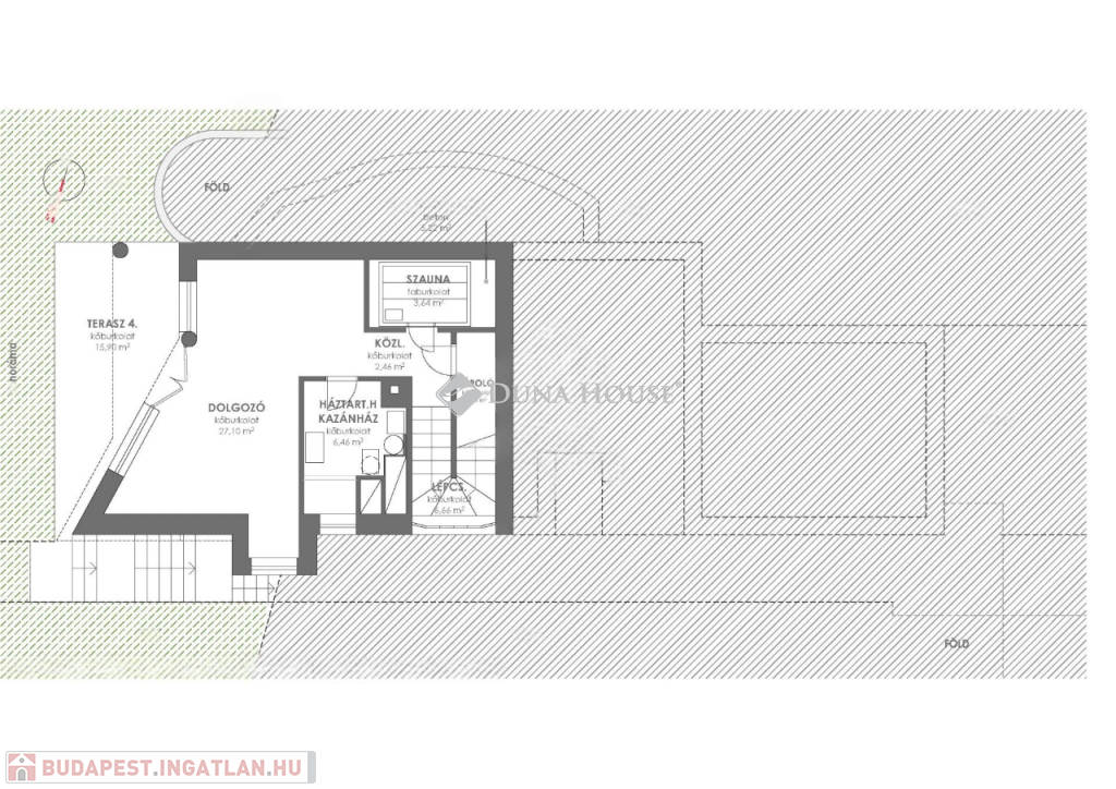
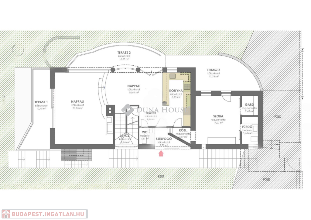
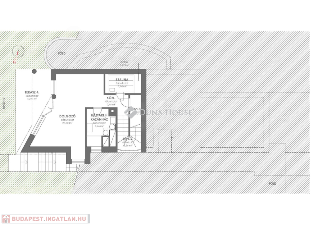
Eladó Panorámás Családi Ház Máriaremetén Elegancia és Modern KényelemBudapest II/A Kerület: Exkluzív Környezet, Kiemelkedő Műszaki TartalomKínálatunkban szerepel ez a 240 nm-es családi ház, amely a II/A kerület keresett, Máriaremetei zöldövezetében, csendes, panorámás utcában található. Az ingatlan a természet közelségét ötvözi a városi kényelemmel.Az otthont egy 897 nm-es, gondozott telek veszi körül, amely privát és nyugodt életteret biztosít. Az ingatlan tehermentes és riasztórendszerrel felszerelt.Térkínálat és KomfortTágas Beosztás: 5 szoba 3 gardróbszoba és 3 fürdőszoba ideális elrendezése nagyobb családok számára.Központi Zóna: Amerikai konyhás nappali, hangulatot teremtő kandallóval.Relaxáció: Saját szauna a mindennapi feltöltődésért.Kültéri Élet: 80 nm-es terasz, amely tökéletes helyszínt nyújt a panoráma élvezetéhez és a társasági eseményekhez.Kialakítás: Beépített bútorok és szekrények segítik a helykihasználást.Modern Technológia és FenntartásKörnyezettudatosság: A ház fűtését és hűtését hatékony hőszivattyús rendszer biztosítja.Fűtési Komfort: Házközponti padlófűtés szolgálja a kellemes hőérzetet, egyedi mérővel felszerelve.Garázs Extrák: Fűthető garázsleálló a téli napokra. Megkezdődött az elektromos autótöltési lehetőség kialakítása.Elhelyezkedés és ÉletminőségMáriaremete egyik legjobb utcája: zöldövezeti nyugalom és biztonság jellemzi a területet.Közlekedés: Kiváló tömegközlekedési kapcsolatok a belváros felé.Infrastruktúra: Boltok, iskolák, óvodák és orvosi szolgáltatások karnyújtásnyira.Ez a prémium családi ház tökéletes választás azoknak, akik egy panorámás, csendes, mégis központi helyen lévő, magas műszaki tartalmú ingatlant keresnek.Keressen minket bizalommal a megtekintés egyeztetéséhez!

Referencia szám: HZ073070-NOK

Családi ház részletei

Ár: 298 000 000 Ft
Méret: 240 négyzetméter
Azonosító: 11608889
Irodai azonosító: HZ073070-5186897
Telek: 897 négyzetméter
Ingatlan állapota: Kitűnő
Jelleg: családi ház
Építőanyag: Tégla
Fűtés jellege: Villany
Fűtés módja: Hőszivattyú
Kor: 21-50 éves
Szintek száma: Földszintes
Egész szobák: 6

Térkép


Így keressen budapesti ingatlant négy egyszerű lépésben. Csupán 2 perc, kötelezettségek nélkül!

Szűkítse a budapesti ingatlanok
listáját
Válassza ki a megfelelő
budapesti ingatlant
Írjon a hirdetőnek
Várjon a visszahívásra