Az értékesítő:
Koppándi Zsuzsanna
+36 70 949 6494

Eladó családi ház Budapest II. ker, 298 000 000 Ft, 240 négyzetméter

298 000 000 Ft
családi ház, 240 négyzetméter
Építőanyag:
Tégla
Egész szobák:
6
Fűtés módja:
Hőszivattyú
Ingatlan állapota:
Kitűnő
Azonosító:
11608889
Értékesítés típusa:
eladó
Ingatlan típusa:
családi ház
Jelleg:
Családi ház
Település:
Budapest II. ker
Alapterület:
240
Telekterület:
897
Ár:
298 000 000 Ft
Szintek száma:
Földszintes
Fűtés jellege:
Villany
Kor:
21-50 éves
Erkély:
Van
Telekterület típusa:
négyzetméter
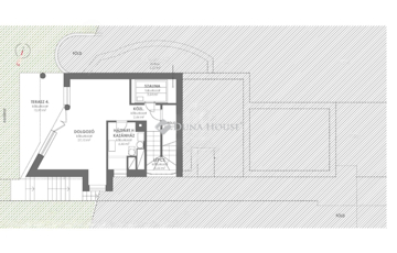
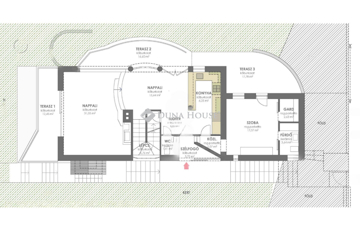
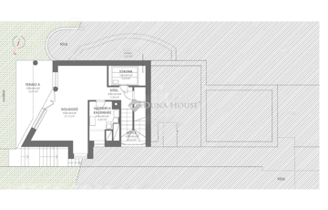
Eladó Panorámás Családi Ház Máriaremetén Elegancia és Modern KényelemBudapest II/A Kerület: Exkluzív Környezet, Kiemelkedő Műszaki TartalomKínálatunkban szerepel ez a 240 nm-es családi ház, amely a II/A kerület keresett, Máriaremetei zöldövezetében, csendes, panorámás utcában található. Az ingatlan a természet közelségét ötvözi a városi kényelemmel.Az otthont egy 897 nm-es, gondozott telek veszi körül, amely privát és nyugodt életteret biztosít. Az ingatlan tehermentes és riasztórendszerrel felszerelt.Térkínálat és KomfortTágas Beosztás: 5 szoba 3 gardróbszoba és 3 fürdőszoba ideális elrendezése nagyobb családok számára.Központi Zóna: Amerikai konyhás nappali, hangulatot teremtő kandallóval.Relaxáció: Saját szauna a mindennapi feltöltődésért.Kültéri Élet: 80 nm-es terasz, amely tökéletes helyszínt nyújt a panoráma élvezetéhez és a társasági eseményekhez.Kialakítás: Beépített bútorok és szekrények segítik a helykihasználást.Modern Technológia és FenntartásKörnyezettudatosság: A ház fűtését és hűtését hatékony hőszivattyús rendszer biztosítja.Fűtési Komfort: Házközponti padlófűtés szolgálja a kellemes hőérzetet, egyedi mérővel felszerelve.Garázs Extrák: Fűthető garázsleálló a téli napokra. Megkezdődött az elektromos autótöltési lehetőség kialakítása.Elhelyezkedés és ÉletminőségMáriaremete egyik legjobb utcája: zöldövezeti nyugalom és biztonság jellemzi a területet.Közlekedés: Kiváló tömegközlekedési kapcsolatok a belváros felé.Infrastruktúra: Boltok, iskolák, óvodák és orvosi szolgáltatások karnyújtásnyira.Ez a prémium családi ház tökéletes választás azoknak, akik egy panorámás, csendes, mégis központi helyen lévő, magas műszaki tartalmú ingatlant keresnek.Keressen minket bizalommal a megtekintés egyeztetéséhez! Referencia szám: HZ073070-NOK
https://budapest.ingatlan.hu/elado/haz/budapest-ii-ker/298-millio-ft;240-negyzetmeter;6-szoba;villany-futes/11608889