Kiadó iroda/üzlethelyiség Szügy 27 000 Ft

Leírás

SZÉCHENYI2020

AZ INKUBÁTORHÁZ AZ EURÓPAI UNIÓ ÉS A MAGYAR KORMÁNY TÁMOGATÁSÁVAL JÖTT LÉTRE

"BEFEKTETÉS A JÖVŐBE"

Szügy Község Önkormányzata a Terület- és Településfejlesztési Operatív Program keretében megvalósuló, TOP-1.1.2-16-NG1-2017-00003 számú, „Inkubátorház Szügyön” elnevezésű projekttel támogatást nyert.

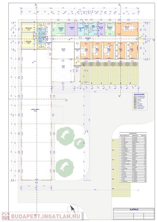
Szügy község külterületén, 140.590 m2 telken épült, összesen 593m2 hasznos alapterületű inkubátorházban, irodák és műhely kiadó.

Szügy község megközelítése:

- Közúton Budapestről Vác érintésével Balassagyarmaton át érhető el a legegyszerűbben, mintegy 80 kilométernyi utazással; hasonló távolságnak tekinthető az az útvonal is, ha az M3-as autópályán indulunk el a Bagi lehajtóig, majd az Aszód-Galgaguta-Magyarnándor útvonalat követve közelítjük meg. A község Balassagyarmat felől a 2108-as úton érhető el, Őrhalom felé a 21 129-es út indul innen.

- Vonattal a MÁV 78-as számú Aszód–Balassagyarmat–Ipolytarnóc-vasútvonalán közelíthető meg. A helyi megállóhely Mohora és Balassagyarmat között található; közúti elérését a 21 129-es útból kiágazó 21 328-as számú mellékút teszi lehetővé.

- Helyközi autóbuszvonalakː 460, 1306, 1308, 3312, 3313, 3315, 3318, 3320, 3321, 3325, 3326, 3329

Inkubátorház általános leírása:

Az inkubátorház 2020 októberében kerül átadásra, mely 2 fő épületrésszel rendelkezik (műhely és irodák). Az épület acélváz szerkezetű, külső héjazata 10 cm-es szendvicspanel, az irodák és szociális helyiségek belső feléről szigetelt gipszkarton előtéttel és válaszfalakkal vannak szerelve.
Az épület műanyag, fokozott hőszigetelésű 3 rétegű hőszigetelt nyílászárókkal felszerelt. A fűtési rendszer levegő-víz hőszivattyúról üzemel, a hőleadás mindkét épületrészben radiátorokon keresztül történik, ill. a használati meleg vizet is a hőszivattyúk termelik. A műhely műgyanta, az irodák épületrész kerámia és laminált parketta padozattal rendelkeznek.

Az inkubátorházba beköltözőket illetően:

Az inkubációs fejlesztés végső haszonélvezői olyan újonnan betelepülő mikro-, kis- és középvállalkozások lehetnek, amelyek a betelepülés időpontjában induló vállalkozásnak minősülnek (legfeljebb öt éve került bejegyzésre). Ezen vállalkozások a betelepüléstől számított legfeljebb 5 évig részesülhetnek inkubációs szolgáltatásban.

Extrák:
- 1. sz. épületrész, amely irodaház funkciót tölt be, teljes körűen klimatizált
- riasztóval és kamerarendszerrel ellátott

Felépítmények:
- 1. sz. épületrész: összesen 197,6 m2 alapterületű, jellemzően irodahelyiségek, tárgyaló, irattár, közlekedő, mosdók, teakonyha, kazánház található a felépítményben
- 2. sz. épületrész: összesen 395,4 m2 alapterületű, szerelő-műhely, zsilip, raktár, közlekedő, női-férfi öltöző, szociális helységek találhatóak a felépítményben

Érdeklődés, megtekintés vagy bármilyen további információ igényével kapcsolatban kérem keressen a megadott elérhetőségeim valamelyikén!

Bérleti díj:
Iroda: 1000 Ft/m2 + rezsi / hó
Műhely: 1000 Ft/m2 + rezsi / hó

Iroda/üzlethelyiség részletei

Ár: 27 000 Ft/hónap
Méret: 27 négyzetméter
Azonosító: 10205526
Irodai azonosító: 4356
Cím: Hársfa sor
Emelet: Földszint
Jelleg: iroda
Elhelyezkedés: Irodaházban
Tulajdonviszony: Bérletijog

Egyéb jellemzők

  • Berendezés
  • Parkoló

Térkép


Így keressen budapesti ingatlant négy egyszerű lépésben. Csupán 2 perc, kötelezettségek nélkül!

Szűkítse a budapesti ingatlanok
listáját
Válassza ki a megfelelő
budapesti ingatlant
Írjon a hirdetőnek
Várjon a visszahívásra