Kiadó iroda/üzlethelyiség Szolnok 964 800 Ft

Leírás

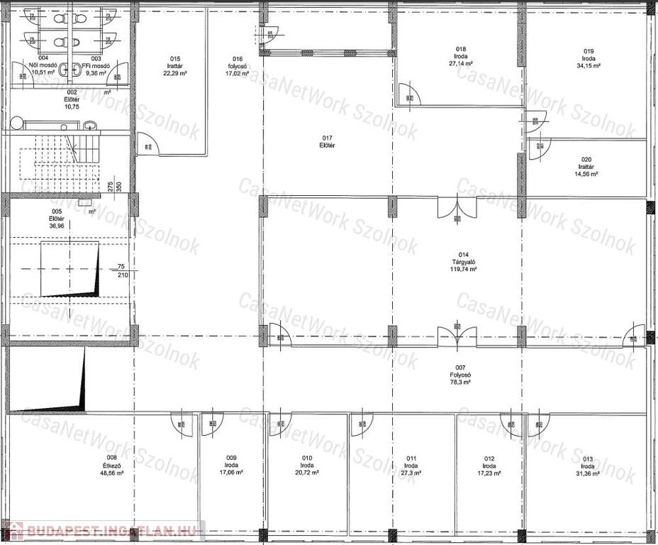
CasaNetWork Szolnok Ingatlaniroda kiadásra kínálja Szolnok ipari parkjában egy teljesen felújított irodaházat, az alábbi paraméterekkel:

- Szolnok ipari park részében található
- könnyen megközelíthető, jó úthálózat
- teljes felújításon esett át, a kor igényeinek megfelelően
- vasbeton oszlopok, vasbeton födém, ytong falazat
- a hasznos alapterület 603m2
- az épület 2. szintjén található
- megtalálható benne 8 kölönálló irodarész, étkező, egy 120m2-es tárgyaló, 2 irattár, férfi, női mosdó
- tágas, világos terek
- nagyméretű loggia
- őrzött területen található, parkolás az épület előtt
- elektromos fűtés, külön fogyasztás mérők
- szigetelt műanyag nyílászárók
- irodánkénti szélessávú internet, telefon
- személyi felvonó kialakítása folyamatban, teherlifttel rendelkezik
- hosszú távra kiadó

Amennyiben a 155805153-as számú kiadó irodaház, vagy bármely, a kínálatunkban található ingatlan felkeltette érdeklődését, hívjon bizalommal!

|A hirdetésben szereplő információk a megbízótól kapott adatok alapján készültek.|

Irodánk teljeskörű szolgáltatással áll ügyfelei rendelkezésére: hitelügyintézés, ügyvédi szolgáltatás, ingatlan értékbecslés, energetikai tanúsítvány készítése.

CasaNetWork-Ingatlanban otthon vagyunk!

Iroda/üzlethelyiség részletei

Ár: 964 800 Ft/hónap
Méret: 603 négyzetméter
Azonosító: 11230294
Irodai azonosító: 155805153
Jelleg: iroda

Így keressen budapesti ingatlant négy egyszerű lépésben. Csupán 2 perc, kötelezettségek nélkül!

Szűkítse a budapesti ingatlanok
listáját
Válassza ki a megfelelő
budapesti ingatlant
Írjon a hirdetőnek
Várjon a visszahívásra