Kiadó iroda/üzlethelyiség Miskolc 1 158 000 Ft

Leírás

Miskolc központjában, búzatér szomszédságában, földszint iroda kiadó!
Ugyanit a a többi emelet is kiadó!
Ár földszint 3000 Ft/m2, emelet 2000 Ft/m2+rezsi/hó

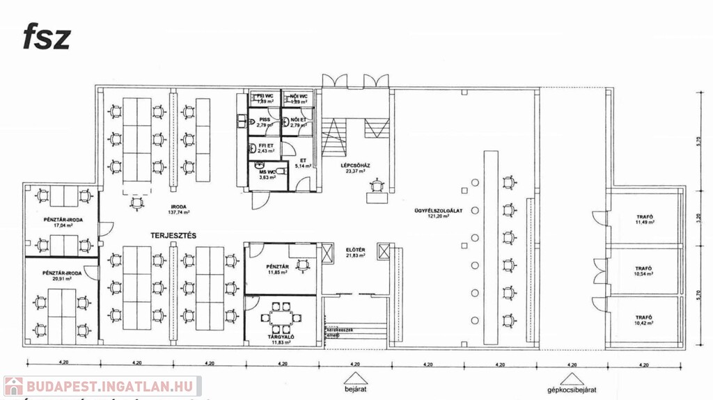
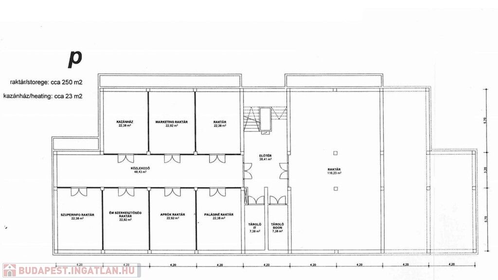
Az ingatlan részletes ismertetése:

- Kivett üzem:
Telek terület 2461 m², amin egy 644 m² -es vasbeton tartószerkezetes, egy légterű, csarnok található, amit úgy alakítottak ki, hogy a tartó oszlopok között, egymástól független, szekcionált garázskapukon keresztül lehet a csarnokba bejutni.
A területen jelenleg 20 db szeméjgépkocsi parkoló van kialakítva.

- Üzletház (Iroda épület)
Alapterülete tulajdoni lap szerint 506 m², ezen a területen kialakított irodák összes hasznos alapterülete 2591 m².
Az épület a 80-as években vasbeton oszlopos szerkezettel épült, így a szintek egybefüggő teret alkotnak, amit könnyen variálhatóan fel lehet osztani, akár egymástól független bérlők fogadására is alkalmas.
Fűtése önálló Fan Coil fűtő/hűtő rendszer
levegő cserélő és szellőztető rendszerrel., A pince és legfelső szint kivételével minden szinten külön nő-férfi WC. és mosdók lettek kialakítva. Teakonyha szintén minden szinten megtalálható.

Közlekedés:
Villamos és városi, ill. távolsági buszmegállók néhány perc séta távolságban elérhetők.
Autópálya 7 perc (3,9 km)
BOSCH 9 perc (3,7 km)
Déli ipari park 15 perc (7 km)

Iroda/üzlethelyiség részletei

Ár: 1 158 000 Ft/hónap
Méret: 386 négyzetméter
Azonosító: 11448885
Irodai azonosító: 115404
Cím: Miskolc
Jelleg: iroda

Egyéb jellemzők

  • Lift

Így keressen budapesti ingatlant négy egyszerű lépésben. Csupán 2 perc, kötelezettségek nélkül!

Szűkítse a budapesti ingatlanok
listáját
Válassza ki a megfelelő
budapesti ingatlant
Írjon a hirdetőnek
Várjon a visszahívásra