Kiadó iroda/üzlethelyiség Gárdony 540 000 Ft

Leírás

Vip-004751.Gárdonyban, a Velencei-tó partjától mindössze 100 méterre ÚJ ÉPÍTÉSŰ társasház földszintjén 103m2-es, utcafronti üzlethelyiség/irodahelyiség 24,3m2-es terasszal kiadó!

Az ingatlan kiváló elhelyezkedésű: mindössze 100 méterre található a Velencei-tó partjától, valamint a vasúti megálló is pár perc sétatávolságra elérhető.

Beltéri elosztás:
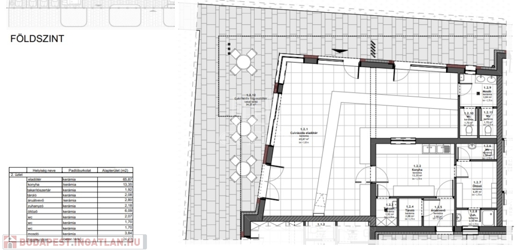
Eladótér (nettó)65,87 m²
Fogyasztótér(nettó)24,27 m²
Konyha(nettó)13,35 m²
Takarítószertár(nettó)1,92 m²
Tároló(nettó)2,08 m²
Árúátvevő(nettó)2,80 m²
Zuhanyzó(nettó)2,18 m²
Öltöző(nettó)6,09 m²
WC(nettó)2,07 m²
WC(nettó)1,70 m²
WC(nettó)1,70 m²
Mosdó(nettó)3,84 m²
Összesen103,6 m²
+ Kültér
Erkély / Terasz (nettó)24,27 m²

Tájolása: É

Minden közmű önállóan mérhető, fogyasztás alapján fizetendő.
A fűtést hőszivattyú biztosítja padlófűtéses hőleadással, klíma előkészítés kialakított.

Ingyenes parkolási lehetőség rendelkezésre áll a társasház környezetében, illetve lehetőség van felszíni parkolóhely megvásárlására a lakópark területén 2,5 M Ft-tól.

A társasház összesen 12 lakásból és 4 üzlethelyiségből áll –
tervezett műszaki átadás: 2026. szeptember.

Főbb műszaki paraméterek:
– padlófűtés
– klíma előkészítés
– egyéni mérőórák
– minőségi anyagok felhasználása
– felsőkategóriás belsőépítészeti kialakítás
– motoros redőnyök
– nyílászárók 3 rétegű üveggel
– választható hideg- és melegburkolat
– CPL fóliás beltéri ajtó választható színben
(Részletes műszaki leírás kérés esetén elérhető)

Bérleti díja: 540.000,- Ft + Áfa/ hó + rezsiköltség, illetve 2 havi kaució
Az ingatlan meg is vásárolható, eladási ára: 130 M Ft +Áfa

Elérhető földszinti, utcafronti irodák/üzlethelyiségek melyek megvásárolhatók, vagy kibérelhetők:
1. számú helyiség: 43m2  Eladási ára: 51.000.000.- forint / Bérleti díja: 250.000,- Ft + Áfa/ hó + rezsiköltség, illetve 2 havi kaució
2. számú helyiség: 127,9m2  Eladási ára: 130.000.000.- forint / Bérleti díja: 540.000,-Ft + Áfa/ hó + rezsiköltség, illetve 2 havi kaució
3. számú helyiség: 38m2  Eladási ára: 44.500.000.- forint / Bérleti díja: 220.000,-Ft + Áfa/ hó + rezsiköltség, illetve 2 havi kaució
4. számú helyiség: 36m2  Eladási ára: 45.000.000.- forint / Bérleti díja: 250.000,-Ft + Áfa/ hó + rezsiköltség, illetve 2 havi kaució

Ha felkeltette érdeklődését, hívja irodánkat bizalommal, éljen ingyenes, személyre szabott hitelügyintézés szolgáltatásunkkal. Segítünk továbbá adásvételhez szükséges ügyvédi közreműködésben, energetikai tanúsítvány, valamint értékbecslés elkészítésében.
For English details please send us a message or an e-mail, thank you.

Iroda/üzlethelyiség részletei

Ár: 540 000 Ft/hónap
Méret: 104 négyzetméter
Azonosító: 11604137
Irodai azonosító: 393364
Cím: Chernel István utca
Jelleg: Üzlethelyiség

Egyéb jellemzők

  • Garázs
  • Parkoló
  • Utcafront

Térkép


Így keressen budapesti ingatlant négy egyszerű lépésben. Csupán 2 perc, kötelezettségek nélkül!

Szűkítse a budapesti ingatlanok
listáját
Válassza ki a megfelelő
budapesti ingatlant
Írjon a hirdetőnek
Várjon a visszahívásra