Kiadó iroda/üzlethelyiség Debrecen, Belváros, 400 000 Ft

Leírás

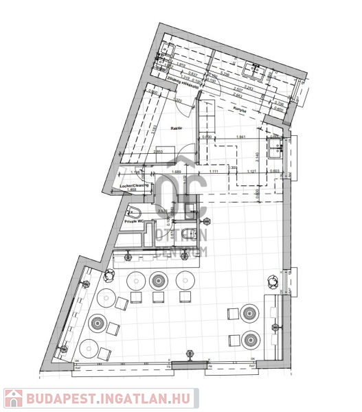
Debrecen belvárosának szívében,nagy gyalogos forgalmú díszburkolatos utcában, a város egyik legfrekventáltabb helyén, 2008-ban épült társasház földszintjén bisztró-kávéház-bárként is üzemelő, frissen felújított, klimatizált, meleg-konyhás, 70 nm-es (+bérelhető 33 nm terasz) vendéglátóegység tulajdonjoga teljes berendezéssel kiadó.

Iroda/üzlethelyiség részletei

Ár: 400 000 Ft/hónap
Méret: 70 négyzetméter
Azonosító: 11565076
Városrész: Belváros
Jelleg: iroda

Így keressen budapesti ingatlant négy egyszerű lépésben. Csupán 2 perc, kötelezettségek nélkül!

Szűkítse a budapesti ingatlanok
listáját
Válassza ki a megfelelő
budapesti ingatlant
Írjon a hirdetőnek
Várjon a visszahívásra