Kiadó iroda/üzlethelyiség Budapest XXII. ker 180 Euro

Leírás

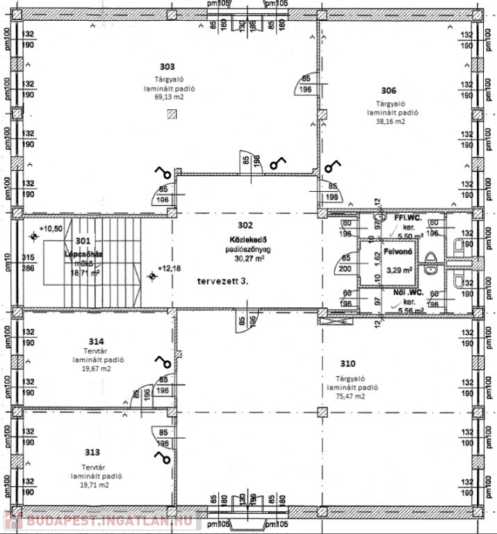
XXII. kerületben Budtétényben jó állapotú 6 szintes irodaházban, 30-222 m² alapterületű irodarészeket kínálunk kiadásra.

Az iroda portaszolgálattal liftes és klimatizált helységekkel rendelkezik.

A bérleti díj : 6 €/m²/hó + ÁFA.

Az üzemeltetési és fenntartási költség : 2,5 €/m²/hó +ÁFA.

A parkolás az iroda előtti közterületen ingyenesen biztosított, valamint területen belül pedig megegyezés szerint van lehetőség a bérlésre.

Az irodarész minimum 12 hónapra kiadó, 2 havi kaució és 1 havi bérleti díj megfizetése szükséges.

Igény esetén a teljes irodaszintek is kiadóak, alakitható belsőterek.

A telephely közvetlenül az M0 -M6 közvetlen közelében helyezkedik el. Könnyű megközelíthető miatt a szolgáltató központ is kialakítható.

Az ingatlan részletes ismertetése és bemutatása, előre egyeztetett időpontban lehetséges, amelyet NAGYON RUGALMASAN kezelünk,
HÉTVÉGÉN IS, további kérdéseivel kapcsolatban várom a jelentkezését.

Iroda/üzlethelyiség részletei

Ár: 180 Euro/hónap
Méret: 30 négyzetméter
Azonosító: 11354964
Irodai azonosító: 364901
Cím: XXII. kerület
Jelleg: iroda

Egyéb jellemzők

  • Garázs
  • Lift
  • Parkoló

Térkép


Így keressen budapesti ingatlant négy egyszerű lépésben. Csupán 2 perc, kötelezettségek nélkül!

Szűkítse a budapesti ingatlanok
listáját
Válassza ki a megfelelő
budapesti ingatlant
Írjon a hirdetőnek
Várjon a visszahívásra