Kiadó iroda/üzlethelyiség Budapest XIV. ker 134 085 Ft

Leírás

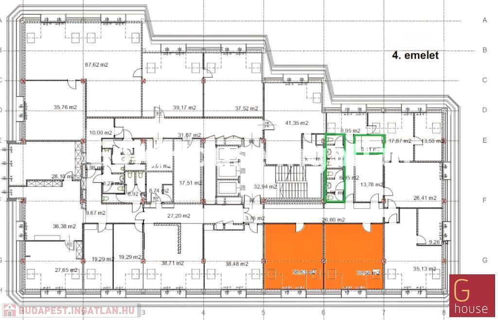
Kiadó iroda – Hungária Irodaház, 38,64 m²

Kiváló lokáció, remek megközelíthetőség!

Budapest frekventált részén, a Hungária körút és a Thököly út sarkán, a Hungária Irodaházban kiadó egy 38,64 m²-es, világos és tágas irodahelyiség.

Az ingatlan saját elektromos órával rendelkezik, hűtése-fűtése parapet fan-coil rendszerrel megoldott. A helyiség rugalmasan alakítható, így ideális választás cégközpontnak, oktatási helyszínnek vagy shared office-ként is.

Közlekedés:
Kiváló tömegközlekedési kapcsolatok – mindössze 50 méterre az 1-es villamos, valamint több buszjárat (5, 7, 7E, 8E, 108E, 110, 112, 133E, 907, 973) megállója és Zugló vasútállomás is a közelben található.

Bérleti díj: 8,9 € / m² / hó + ÁFA-tól
Üzemeltetési díj:** 2.850 Ft / m² / hó + ÁFA
(+ saját áramfogyasztás)

Parkoló mélygarázsban megoldható melynek díja: 100 €+ÁFA,
Udvari parkoló díja: 55 100 €+ÁFA.
Közös területi szorzó: 7%

Szolgáltatások:
- 24 órás recepció szolgálat,
- Parapet fan-coil fűtő-hűtő klímarendszer,
- Étterem többféle napi menüvel,
- Mélygarázs és felszíni udvari parkolók,
- Rugalmasan osztható irodaterületek,
- Nyitható ablakok,
- Bicikli tároló,
- Zuhanyzási lehetőséggel ellátott öltözők,
- Egyéb szolgáltatások.

Ugyanitt még egy hasonló méretű és egymással össze nyitható helyiség is bérelhető!

Iroda/üzlethelyiség részletei

Ár: 134 085 Ft/hónap
Méret: 38 négyzetméter
Azonosító: 11574486
Irodai azonosító: 14491
Cím: Bp. XIV. ker. Hungária krt.
Jelleg: iroda
Helyiségek: 1

Egyéb jellemzők

  • Lift

Így keressen budapesti ingatlant négy egyszerű lépésben. Csupán 2 perc, kötelezettségek nélkül!

Szűkítse a budapesti ingatlanok
listáját
Válassza ki a megfelelő
budapesti ingatlant
Írjon a hirdetőnek
Várjon a visszahívásra