Kiadó iroda/üzlethelyiség Budapest XIV. ker 1 356 600 Ft

Leírás

FOGARASI ÚTON, FREKVENTÁLT RÉSZEN, 24 H PORTA SZOLGÁLATTAL, 2 DB PARKOLÓVAL!









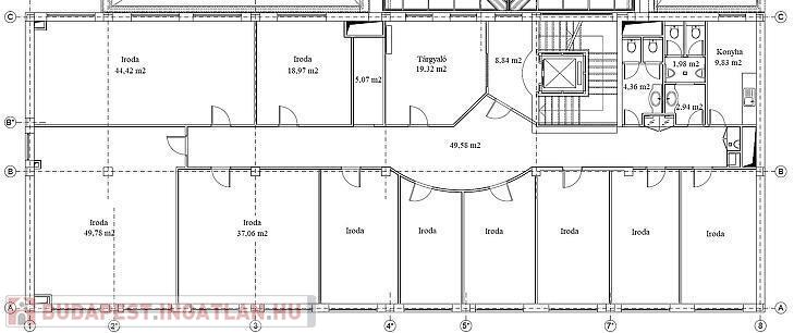
XIV. Kerület központi részén, BKV-val és személygépjárművel egyaránt könnyedén megközelíthető modern irodaház teljes 357 m2-es második emelete keresi hosszútávra új bérlőjét.

Az irodaház a sorompóval zárt parkolóból és utcafrontról is megközelíthető, kártyás beléptető rendszerrel működtetett.

Az iroda szintet üvegliften és lépcsőn keresztül érjük el , az épület saját recepcióval és kamerarendszerrel felszerelt.

Jelenleg a szinten 11 külön,- a folyosóról nyíló iroda,- 1 db 12 fős befogadóképességű tárgyaló,- férfi és női mosdó és teakonyha található.

A felszíni parkolóban 2 db autóbeálló tartozik hozzájuk, igény esetén további parkolóhelyek bérelhetőek.

A házon belül a tágas konferenciaterem térítésmentesen használható rendezvények, megbeszélések, oktatások lebonyolítására.





Megközelítés: 80-a trolival és 130-as busszal. M2 jelzésű metróval a Stadionok megállótól 7 perc sétára található.











A bérleti díj: 9,5 euró/ m2

Üzemeltetési díj: 7 euró/ m2











További információkért az alább megadott telefonszámon keressen bizalommal!





















Bérlőink számára a közvetítés díjtalan.

Iroda/üzlethelyiség részletei

Ár: 1 356 600 Ft/hónap
Méret: 357 négyzetméter
Azonosító: 11585030
Irodai azonosító: 18596
Jelleg: iroda
Helyiségek: 1

Így keressen budapesti ingatlant négy egyszerű lépésben. Csupán 2 perc, kötelezettségek nélkül!

Szűkítse a budapesti ingatlanok
listáját
Válassza ki a megfelelő
budapesti ingatlant
Írjon a hirdetőnek
Várjon a visszahívásra