Kiadó iroda/üzlethelyiség Budapest XIII. ker 950 000 Ft

Leírás

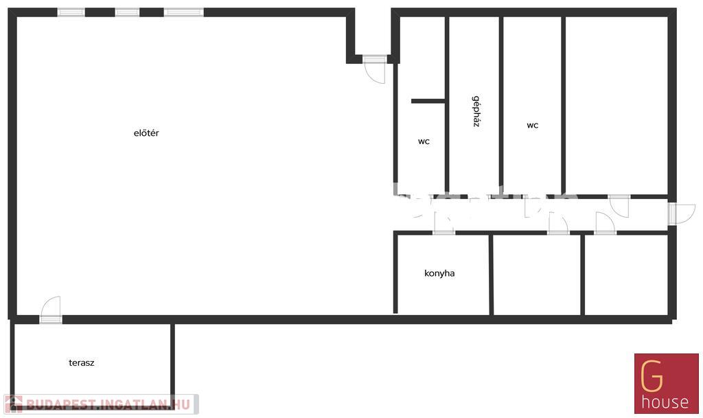
XIII.kerületben Béke úthoz közel kiadó egy 200nm-es földszinti, nagy üvegportállal rendelkező Üzlethelyiség!

Az ingatlan többfunkciós, alkalmas irodának, raktárnak vagy üzletnek is (jelenleg iroda, raktár és szervizként működik), és frissen festett állapotban kerül átadásra.

A helyiségben tárgyaló, irodák, konyha és szociális helyiségek is találhatóak. Az ingatlanhoz 4 parkolóhely tartozik, amelyek zárt, belső udvaron helyezkednek el. Az üzlethelyiség kettős bejárattal rendelkezik, az utcáról és a belső udvarról egyaránt megközelíthető, továbbá egy hátsó, kertkapcsolatos terasz is a bérlők rendelkezésére áll. Az ingatlan előnyei közé tartozik a kiváló megközelíthetőség, a saját parkoló, valamint az, hogy a helyiségek igény szerint alakíthatóak.

A minimum bérleti idő 1 év, a kaució mértéke 3 havi bérleti díj. A bérleti díjon felül a közös költség (amely tartalmazza a víz- és fűtésköltséget), valamint az áramfogyasztás fizetendő a tényleges fogyasztás alapján.

Bérleti díj: 950.000 Ft + ÁFA/hó
Parkoló bérleti díj: 100.000 Ft + ÁFA/parkolóhely/hó

Érdeklődés vagy megtekintés esetén keressen bizalommal!

Iroda/üzlethelyiség részletei

Ár: 950 000 Ft/hónap
Méret: 200 négyzetméter
Azonosító: 11469605
Irodai azonosító: 13926
Cím: Új építésű házban kiadó földszinti iroda
Jelleg: Üzlethelyiség
Helyiségek: 1

Egyéb jellemzők

  • Lift

Így keressen budapesti ingatlant négy egyszerű lépésben. Csupán 2 perc, kötelezettségek nélkül!

Szűkítse a budapesti ingatlanok
listáját
Válassza ki a megfelelő
budapesti ingatlant
Írjon a hirdetőnek
Várjon a visszahívásra