Kiadó iroda/üzlethelyiség Budapest VIII. ker 1 600 000 Ft

Leírás

Az Astoriánál magas színvonalú irodaházban A+; A kategóriás irodahelyiségek hosszú távra kiadóak!

I. emeleten 2551m² irodaterület
II. emeleten 1550m² irodaterület
III. emeleten 1050m² irodaterület
VI. emeleten 1570m² irodaterület
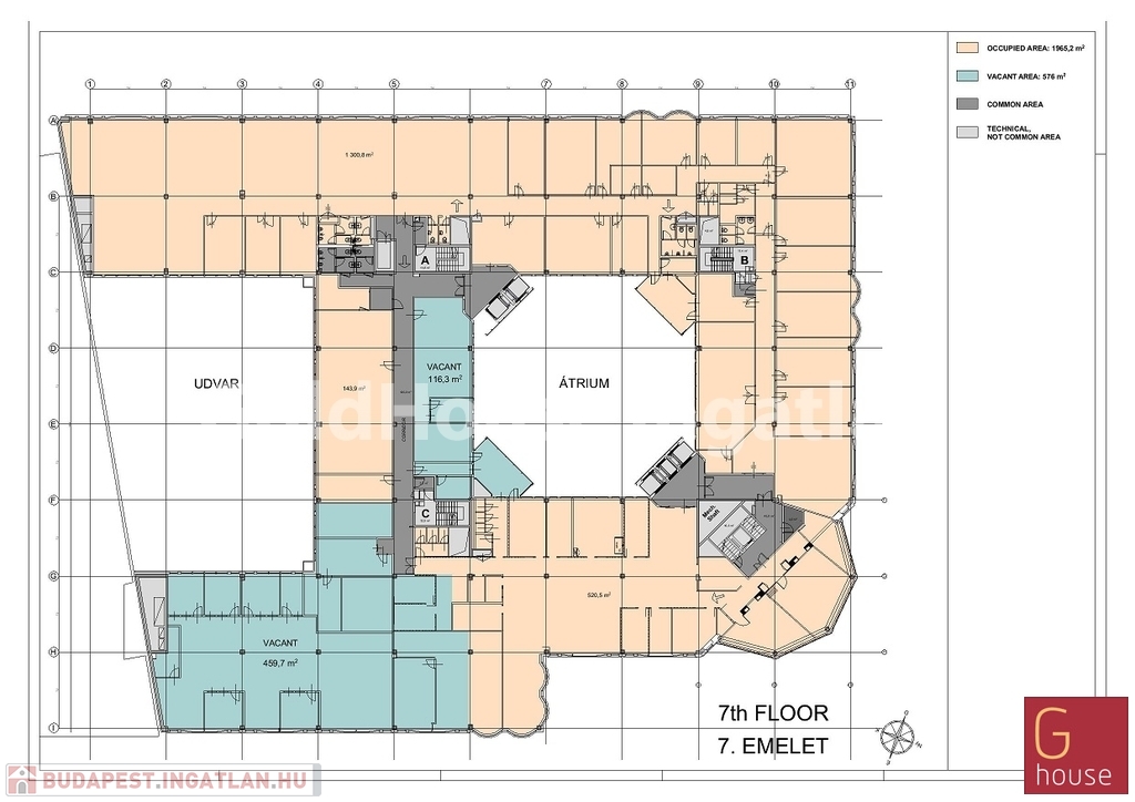
VII. emeleten 528m² irodaterület
VIII. emeleten 534m² irodaterület

Az irodaterületek bérleti 15,50€/m²/hó + Áfa. A bérelt irodaterületek után fizetendő üzemeltetési költség 1100Ft/m²/hó + Áfa, a közös területi szorzó: 12,3%.

Igény esetén személygépkocsi parkoló is bérelhető 120€/hó + Áfa áron.

Amennyiben Önnek is presztízskérdés, hol helyezkedik el az irodája, cégének központja, akkor jöjjön el és ajánlatomat nézze meg!

Iroda/üzlethelyiség részletei

Ár: 1 600 000 Ft/hónap
Méret: 528 négyzetméter
Azonosító: 11031625
Irodai azonosító: 6954
Cím: Astoria
Emelet: 7. emelet
Jelleg: iroda
Helyiségek: 1

Egyéb jellemzők

  • Garázs
  • Lift

Így keressen budapesti ingatlant négy egyszerű lépésben. Csupán 2 perc, kötelezettségek nélkül!

Szűkítse a budapesti ingatlanok
listáját
Válassza ki a megfelelő
budapesti ingatlant
Írjon a hirdetőnek
Várjon a visszahívásra