Kiadó iroda/üzlethelyiség Budaörs 1 642 Euro

Leírás

Budaörsön irodaházban kiadó iroda!



Az iroda második emeletén 2026 májusától kiadó egy 156 nm-es iroda.



Az épület sarkán van a terület, körben ablakok, napfényes. Saját új konyhával és saját mosdókkal rendelkezik.



Remek infrastruktuális környezet, bevásárló központ, busz végállomás, autópálya lehajtás közelében.



Paraméterek:



-nettó méret: 156.4 nm



-közös területi szorzó: 8 %



-bérleti díj: 10,5 €/nm + Áfa



-üzemeltetési költség: 2500 Ft/nm+Áfa



-mélygarázs: 65 € + Áfa



Költözhető: 2026 májustól.



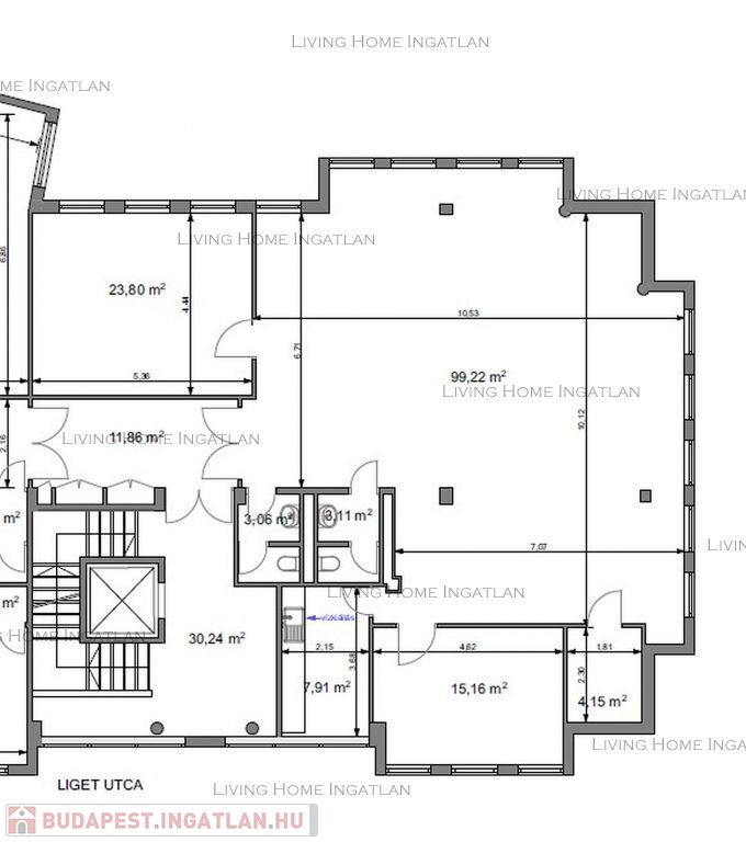
Az alaprajz és az adatok tájékoztató jellegűek.



English:



Office space for rent in the  office building in Budaörs!



A 156-square-meter office on the second floor will be available for rent starting in May 2026.



The space is located on the corner of the building, with windows on all sides, providing plenty of natural light. It features a new kitchen and private restrooms.



Excellent infrastructure: shopping center, bus terminal, and highway exit nearby.



Specifications:



-Net area: 156.4 sqm



-common area factor: 8%



-rent: €10.5/sqm + VAT



-operating costs: 2,500 HUF/sqm + VAT



-underground parking: €65 + VAT



Available: Starting May 2026.



The floor plan and data are for informational purposes only.





 


Iroda/üzlethelyiség részletei

Ár: 1 642 Euro/hónap
Méret: 156 négyzetméter
Azonosító: 11606407
Irodai azonosító: 360651036-1409
Jelleg: iroda
Helyiségek: 1

Egyéb jellemzők

  • Berendezés
  • Garázs
  • Kirakat
  • Lift
  • Parkoló
  • Utcafront

Így keressen budapesti ingatlant négy egyszerű lépésben. Csupán 2 perc, kötelezettségek nélkül!

Szűkítse a budapesti ingatlanok
listáját
Válassza ki a megfelelő
budapesti ingatlant
Írjon a hirdetőnek
Várjon a visszahívásra