Kiadó ipari ingatlan Veszprém 85 100 Ft

Leírás

2026.Március.01-től aktuális!
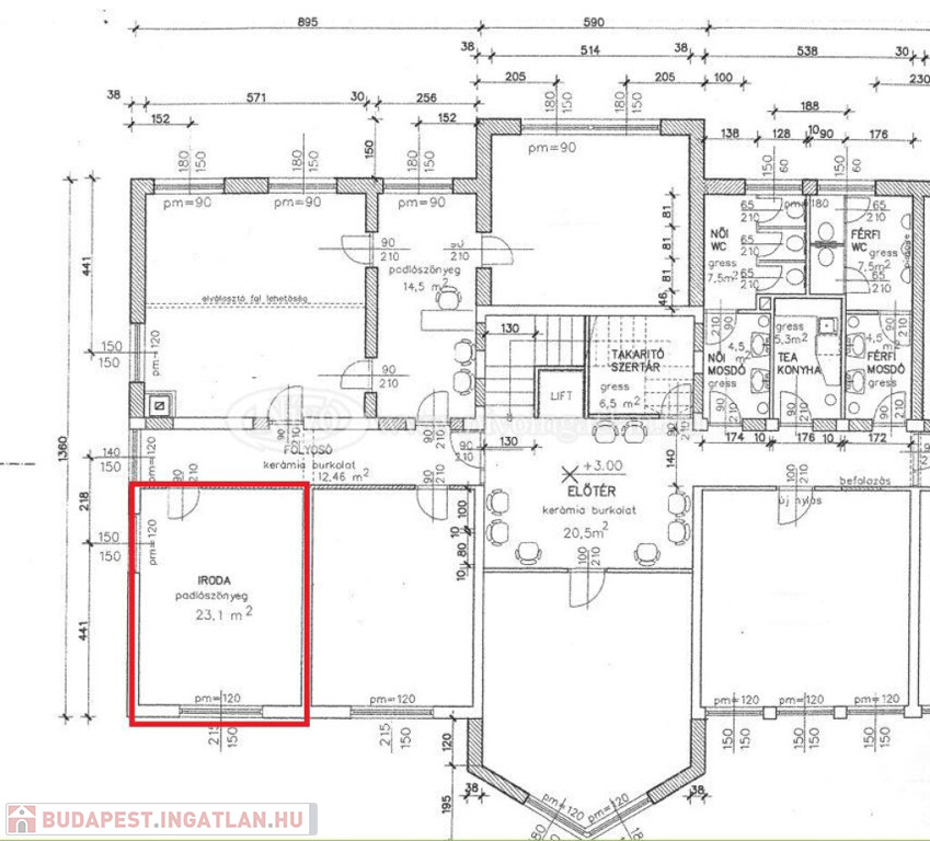
Veszprémben belváros közelében, irodaépületben, 1. emeleti, 23 m2-es, egy helyiségből álló iroda bérbeadó.

Az irodaépület és az iroda riasztóval, klímával, beléptető rendszerrel ellátott. Parkolni egy sorompóval ellátott udvarban lehetséges. A 23 m2-es irodablokkhoz felszíni parkoló tartozik.

A bérleti díj magában foglalja a fűtést-hűtést illetve a közös helyiségek villany fogyasztását, szocblokk és a közös helyiségek takarítását, teakonyha használatot. A villany saját óráról működő, fogyasztás alapján elszámolt.

Minimum bérleti idő: 1 év. Bérleti díj: 3.700 Ft/m2 + ÁFA + villany/hó. A Tulajdonos elvárása, hogy szerződéskötéskor kaució megfizetése szükséges, ami foglalóként is biztosíték illetve az ingatlan birtokba adásakor a bérleti díj előre megfizetése.

Az ingatlan megtekintése irodánkkal előre egyeztetett időpontban történik. Szívesen állunk rendelkezésre!

Keresünk és kínálunk eladó és bérbeadó ingatlanokat, albérleteket Veszprém, Balaton, Bakony, Káli-medence régióban.
Ügyeleti telefonszámunk: .
A Nívó Ingatlanforgalmi Szakértői Iroda teljes eladó és bérbeadó ingatlan és albérlet kínálatát megtekintheti a oldalunkon.

Irodai azonosító kód: N4770 Nívó ingatlan: N4770

Ipari ingatlan részletei

Ár: 85 100 Ft/hónap
Méret: 23 négyzetméter
Azonosító: 11599561
Cím: 8200 Veszprém, Kőbánya utca 2.
Ingatlan állapota: Átlagos
Jelleg: irodaház
Helyiségek: 1

Így keressen budapesti ingatlant négy egyszerű lépésben. Csupán 2 perc, kötelezettségek nélkül!

Szűkítse a budapesti ingatlanok
listáját
Válassza ki a megfelelő
budapesti ingatlant
Írjon a hirdetőnek
Várjon a visszahívásra