Kiadó ipari ingatlan Törökbálint 7 650 Euro

Leírás

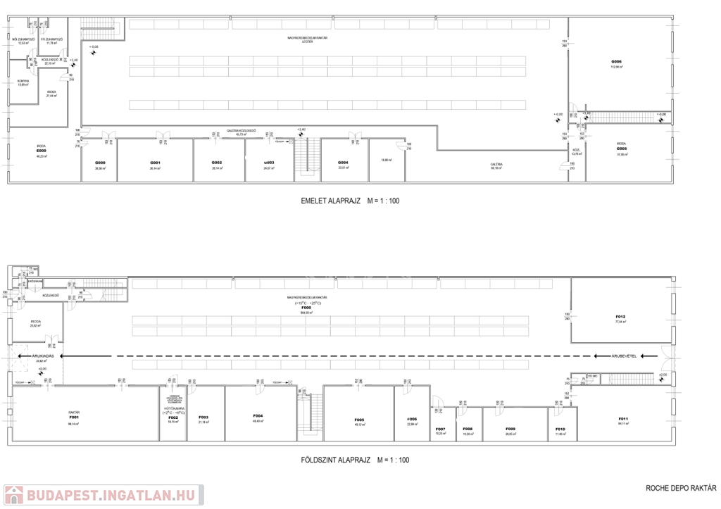
Kiadó ipari ingatlan teljes felszereltséggel Törökbálinton!

Törökbálint iparterületén, kiváló közlekedési adottságokkal, bérbevételre kínálunk egy 1730 m²-es ipari létesítményt, amely sokoldalú felhasználásra alkalmas.

Főbb jellemzők:
• Raktárak és üzem:
• Polcokkal targoncával felszerelt raktár.
• Hidegraktár és hűtőkamra is rendelkezésre áll.
• Kamionok számára 2 rakodási pont rámpával.
• Iroda és tárgyalók:
• Az irodarész teljes körűen felújított, modern, bútorozott és légkondicionált.
• Két szintes kialakítás, amelyben irodák, tárgyalók és raktárak találhatók, valamint műhely vagy üzem is könnyen kialakítható.
• Speciális felszereltség:
• Biztonságos, zárható irattár és trezor, beléptető rendszer kamerával
• Csúszásmentes, mosható műgyanta padló.
• Közlekedés és parkolás:
• Könnyen megközelíthető az M0 autópályáról, súlykorlátozás nélkül.
• 12 személyautó számára kialakított parkoló.

További kérdéseivel vagy egyedi igényekkel kapcsolatban kérem, forduljon hozzám bizalommal! Segítek megtalálni az Ön számára ideális megoldást.

Bérleti díj: 7650 € / hó + ÁFA

Ipari ingatlan részletei

Ár: 7 650 Euro/hónap
Méret: 1 700 négyzetméter
Azonosító: 11474950
Irodai azonosító: 378003
Cím: Üzem, raktár és iroda egy helyen!
Ingatlan állapota: Átlagos
Jelleg: egyéb

Térkép


Így keressen budapesti ingatlant négy egyszerű lépésben. Csupán 2 perc, kötelezettségek nélkül!

Szűkítse a budapesti ingatlanok
listáját
Válassza ki a megfelelő
budapesti ingatlant
Írjon a hirdetőnek
Várjon a visszahívásra