Kiadó ipari ingatlan Tata, Ipari park, 3 500 Euro

Leírás

Tata Déli Ipari Parkjában, az M1 autópályától néhány percre hosszú távra bérbeadó egy 2019-ben használatbavételi engedéllyel átadott, újszerű állapotú, könnyűszerkezetes ipari csarnok komplett irodai és szociális blokkal.

Az ingatlan aszfaltos úton, jól megközelíthető, ipari környezetben helyezkedik el, jól szervezhető logisztikai adottságokkal. Elhelyezkedése kiváló választás lehet Budapest–Győr tengelyen működő vállalkozások számára.

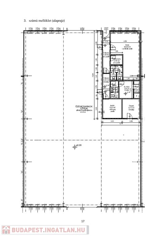
A teljes hasznos alapterület 581,4 m², amelyből 507,87 m² egybefüggő üzemcsarnok, a fennmaradó terület pedig jól elkülönített irodai és szociális blokk.

A csarnok korábban fémipari gyártó és összeszerelő tevékenységnek adott helyet, de kialakítása kifejezetten sokoldalúan hasznosítható. Alkalmas lehet műhelynek, raktárnak, összeszerelő üzemnek, telephelynek vagy kisebb logisztikai bázisnak is.

Az irodai és szociális rész tartalmaz:
– 26,63 m²-es irodát
– teakonyhát
– étkezőt
– irattárat
– öltözőt
– zuhanyzót
– több WC-t
– közlekedőket és előtereket

A csarnok megfelelő ipari kapacitással rendelkezik, az ingatlan közművesített, 3x63 A elektromos teljesítménnyel ellátott.

Az épület 2018–2019-ben épült, szendvicspanel falazattal és Lindab tetőszerkezettel, műszaki állapota megkímélt, korszerű.

Bérleti díj: 3.500 EUR / hó
Minimum bérleti idő: 1 év.
Megtekintés előre egyeztetett időpontban lehetséges.

Ipari ingatlan részletei

Ár: 3 500 Euro/hónap+ÁFA
Méret: 584 négyzetméter
Azonosító: 11601906
Városrész: Ipari park
Ingatlan állapota: Kérdezzen rá a hirdetőtől »
Jelleg: műhely és raktár

Egyéb jellemzők

  • Berendezés
  • Csatorna
  • Gáz
  • Ipari áram
  • Villany
  • Víz

Térkép


Így keressen budapesti ingatlant négy egyszerű lépésben. Csupán 2 perc, kötelezettségek nélkül!

Szűkítse a budapesti ingatlanok
listáját
Válassza ki a megfelelő
budapesti ingatlant
Írjon a hirdetőnek
Várjon a visszahívásra