Kiadó ipari ingatlan Szikszó 1 200 000 Ft

Leírás

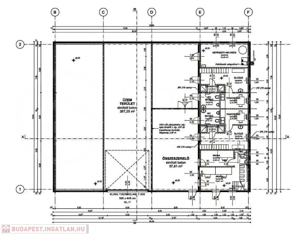
Szikszón hosszútávra KIADÓ,újszerű,szigetelt acélvázas szerkezetű 511nm-es csarnok, 4500nm-es telken!

Bérleti díj: 1.200.000. - FT+ÁFA/hó +rezsi
Szerződéskötés alkalmával 2 HAVI KAUCIÓ megfizetése szükséges.

Helyiséglista:
- Iroda: 29 m2
- Kiállítóterem: 81 m2
- Női-Férfi öltöző,
- Teakonyha,
- 2 mosdó,
- 2 zuhanyzó.

Műszaki leírás:
Az acélvázas csarnok, műanyagbevonatos horganyzott acél trapézlemez tetőfedést kapott. Szigetelése - 12 cm vastagságú - NOBASIL tipusú kőzetgyapot. A csarnokrész burkolata színes, műanyag bevonatos, horganyzott acél trapézlemez (LTP20). A műanyag nyílászárók 2 régetű üvegezésűek, hőszigeteltek. Az ipari padló vasalt aljzatbeton(C25-24/KK). A fűtésről Beretta típusú kazán gondoskodik, puffertartállyal ellátva, radiátor hőleadókon keresztül. Áramellátottság 3x63A és 15kW-os napelemrendszerrel.
A felépítmény szekcionált ipari kapuval (500x448)és személyzeti bejáróval ellátott.
A telephely körbekerített, betonozott parkolóval kialakítva.

Közlekedés/környezet:
Szikszó belterületi részén, aszfaltozott úton könnyen megközelíthető.

A csarnok elhelyezkedése és kialakítása miatt akár műhely,- üzem,- raktár vagy telephelyként is funkcionálhat.

Megtekintéssel kapcsolatban keressen bizalommal.

Ipari ingatlan részletei

Ár: 1 200 000 Ft/hónap
Méret: 511 négyzetméter
Azonosító: 11562374
Irodai azonosító: 121764
Cím: Szikszó
Ingatlan állapota: Átlagos
Jelleg: egyéb

Így keressen budapesti ingatlant négy egyszerű lépésben. Csupán 2 perc, kötelezettségek nélkül!

Szűkítse a budapesti ingatlanok
listáját
Válassza ki a megfelelő
budapesti ingatlant
Írjon a hirdetőnek
Várjon a visszahívásra