Kiadó ipari ingatlan Miskolc 1 200 000 Ft

Leírás

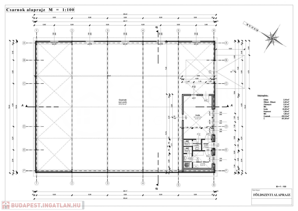
Miskolc Szirma - Martinkervárosi részén hosszú távra bérbeadó egy újszerű 673 m2-es épület.

Bérbeadási ár: 1.200.000 Ft + ÁFA/hó + rezsi + 2 havi kaució.

* Az épület összterülete:673 nm Iroda, vizesblokkok, étkező,tárolók.
* Rakodási terület 360nm+140 nm össz:500 nm.
* Belmagasság:4,25 fm.

Az épület RUUKKI szendvicspanel szerkezetből épült.
Az iroda és szociális blokkokban gres lap burkolat található, a többi helyiség ipari padlóval biztosított.
Nyílászárók műanyag szerkezetűek.
Az iroda blokkban a fűtés gázkazán, a többi helyiségben Blautherm hőszivattyúval megoldott. A raktárépületbe való bejutást 2 elektromos ipari kapu teszi lehetővé.
Az ingatlan körbekerített, udvara betonozott, aszfaltozott úton könnyen megközelíthető.
Az épület többféle tevékenység végzésére is kiválóan alkalmas (autószerelés, raktározás, gyártási tevékenység).

Közlekedés:
Autópálya 2km távolságra
Miskolc belváros 3.5km távolságra
Töltőállomás az ingatlan szomszédságában

Ipari ingatlan részletei

Ár: 1 200 000 Ft/hónap+ÁFA
Méret: 673 négyzetméter
Azonosító: 11549468
Irodai azonosító: 120401
Cím: Miskolc
Ingatlan állapota: Átlagos
Jelleg: egyéb

Így keressen budapesti ingatlant négy egyszerű lépésben. Csupán 2 perc, kötelezettségek nélkül!

Szűkítse a budapesti ingatlanok
listáját
Válassza ki a megfelelő
budapesti ingatlant
Írjon a hirdetőnek
Várjon a visszahívásra