Kiadó ipari ingatlan Győr 2 960 000 Ft

Leírás

Győrben az M1 autópályától 5km-re, kamionnal súlykorlátozás nélkül megközelíthető ipari csarnok kiadó. Az ingatlan a kor minden követelményeinek és elvárásainak megfelel. Több közvetlen bejáratú irodával, kiszolgáló helységekkel, raktárakkal és szociális helyiségekkel rendelkezik.
Kialakítását és műszaki tartalmát tekintve alkalmas ipari gyártásra, de akár raktározási célra is.

Területmegosztás:
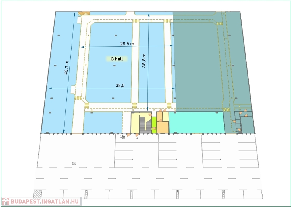
C csarnok:
A csarnok területe 1 685,4 m2, melyből 276,7 m2 berendezett magaspolcos raktár, 181,1 m2 fejépületi csarnokrész, 23,8 m2 szociális helyiség.

Főbb jellemzők:
- nagy terhelhetőségű műgyantabevonatú padozat,
- LED csarnok- és helyiségvilágítás,
- dedikált szociális helységek,
- szabályozható légtechnika (hűtés, fűtés), termoventillátoros levegő temperálás,
- független, fedett vasúti iparvágány,
- fedett kültéri tároló.- szabályozható légtechnika (hűtés, fűtés), termoventillátoros levegő temperálás,
- hővisszanyerő szellőztető rendszer.
- melegvizes hőcserélős légbefúvásos fűtésrendszer.
- parkolás az épület előtt kialakított parkolóban.
- Emeleti galéria részben férfi öltöző- zuhanyzók( 160 fő ), Női öltöző-zuhanyzó (40 fő)
- akár 1000/1000 Mbit bérelt vonali internet,
- saját 100 mellékes telefon alközpont - azonnali használható!
- strukturált hálózat minden munka asztalnál,
- szerver elhelyezés a szerverszobában,
- kaputelefon.
Bérleti díj: 4,5 euró+áfa/m2 ( egységesen az irodák és szociális helyiségek is)
Minimum bérelhető idő 24 hónap.
Kaució, 2 havi bérleti díjnak megfelelő összeg.

Ipari ingatlan részletei

Ár: 2 960 000 Ft/hónap+ÁFA
Méret: 1 685 négyzetméter
Azonosító: 11599058
Irodai azonosító: 124953
Cím: Győr
Ingatlan állapota: Átlagos
Jelleg: egyéb

Így keressen budapesti ingatlant négy egyszerű lépésben. Csupán 2 perc, kötelezettségek nélkül!

Szűkítse a budapesti ingatlanok
listáját
Válassza ki a megfelelő
budapesti ingatlant
Írjon a hirdetőnek
Várjon a visszahívásra