Kiadó ipari ingatlan Diósd 2 280 Euro

Leírás

Ipari ingatlan bérbeadó Diósd kiemelt gazdasági övezetében
Budapest határán, Diósd egyik legfontosabb ipari‑gazdasági övezetében kínálunk bérbeadásra egy nettó hasznos 285 m², jó műszaki állapotú, önálló ipari/műhely ingatlant.

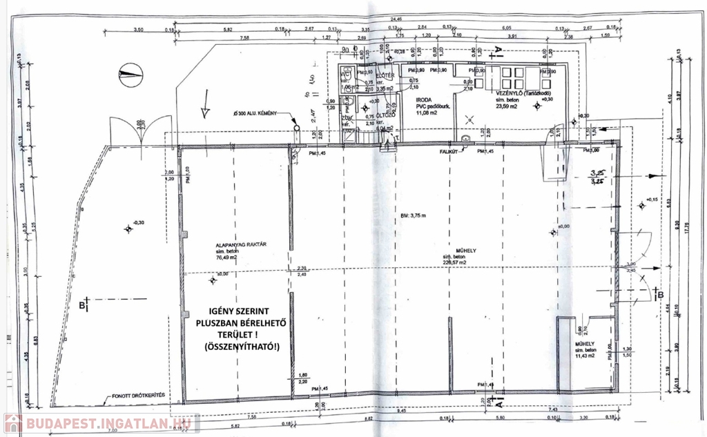
FIGYELEM: igény szerint az alaprajzon látható ALAPANYAG RAKTÁR ( 76,49 m² ) pluszban bérelhető a területhez, ebben az esetben az össz. alapterület: 361,49 m² lenne. Ez a terület jelenleg leválasztásra került, de kérésre egybenyitható / hasznosítható !

Az épület 2026. márciusától használatba vehető, és alkalmas gyártási, műhely-, logisztikai vagy szolgáltatóipari tevékenységre.

Az ingatlan nagy áramkapacitással (120 A), radiátoros gázfűtéssel, teherbíró ipari aljzattal, saját iroda- és szociális blokkal, valamint őrzött, betonozott udvarral rendelkezik.
A telephely kamionnal is könnyedén megközelíthető, a beállás és rakodás zavartalanul megoldható.

Az épület előtt több autó számára biztosított a parkolás, de igény szerint további szabad, külső terület is bérelhető hozzá.
Az épület napelemrendszerrel felszerelt, amely jelentősen csökkenti az üzemeltetési költségeket.

Főbb műszaki jellemzők:

Acélvázas, téglafalazatú ipari épület
- 120 A ipari áram, külön mérőórákkal
- Teherbíró, betonozott ipari padló
- Radiátoros gázfűtés
- LED-es ipari világítás
- 3,75 méter belmagasság
- Saját irodahelyiségek és szociális blokk (mosdó, öltöző, teakonyha)
- Zárt, őrzött, kamerázott udvar
- Napelemrendszer telepítve
- Kamionnal is könnyen megközelíthető és bejárható
- Különálló épület, teljes egészében saját használatú

Elhelyezkedés és megközelíthetőség: Diósd ipari övezetének központi részén található, kiváló közlekedési kapcsolatokkal.

- Budapest: 10–12 perc
- M0 / M1 / M7 autópályák: 2–4 perc
- Jó tömegközlekedés a környéken
- Biztonságos, fejlődő vállalati környezet

A lokáció ideális olyan vállalkozások számára, amelyeknek fontos a gyors autópálya‑kapcsolat, a könnyű áruszállítás és a főváros közelsége.

Felhasználási lehetőségek:

- Gyártó- és termelőüzem
- Autószerviz, CNC-, lakatos-, faipari vagy fémipari műhely
- Logisztikai raktár + iroda kombináció
- E‑kereskedelmi háttérbázis
- Kisvállalati telephely
- Szolgáltatóipari műhelyek

Bérleti díj: a szerződni kívánt bérleti díj: 8 EUR/m²/hó + rezsi + ÁFA (forintban fizetve).

Ipari ingatlan részletei

Ár: 2 280 Euro/hónap
Méret: 285 négyzetméter
Azonosító: 11602542
Irodai azonosító: 393125
Cím: Diósd Iparterület
Ingatlan állapota: Átlagos
Jelleg: egyéb

Térkép


Így keressen budapesti ingatlant négy egyszerű lépésben. Csupán 2 perc, kötelezettségek nélkül!

Szűkítse a budapesti ingatlanok
listáját
Válassza ki a megfelelő
budapesti ingatlant
Írjon a hirdetőnek
Várjon a visszahívásra