Kiadó ipari ingatlan Budapest XXII. ker 3 688 Euro

Leírás

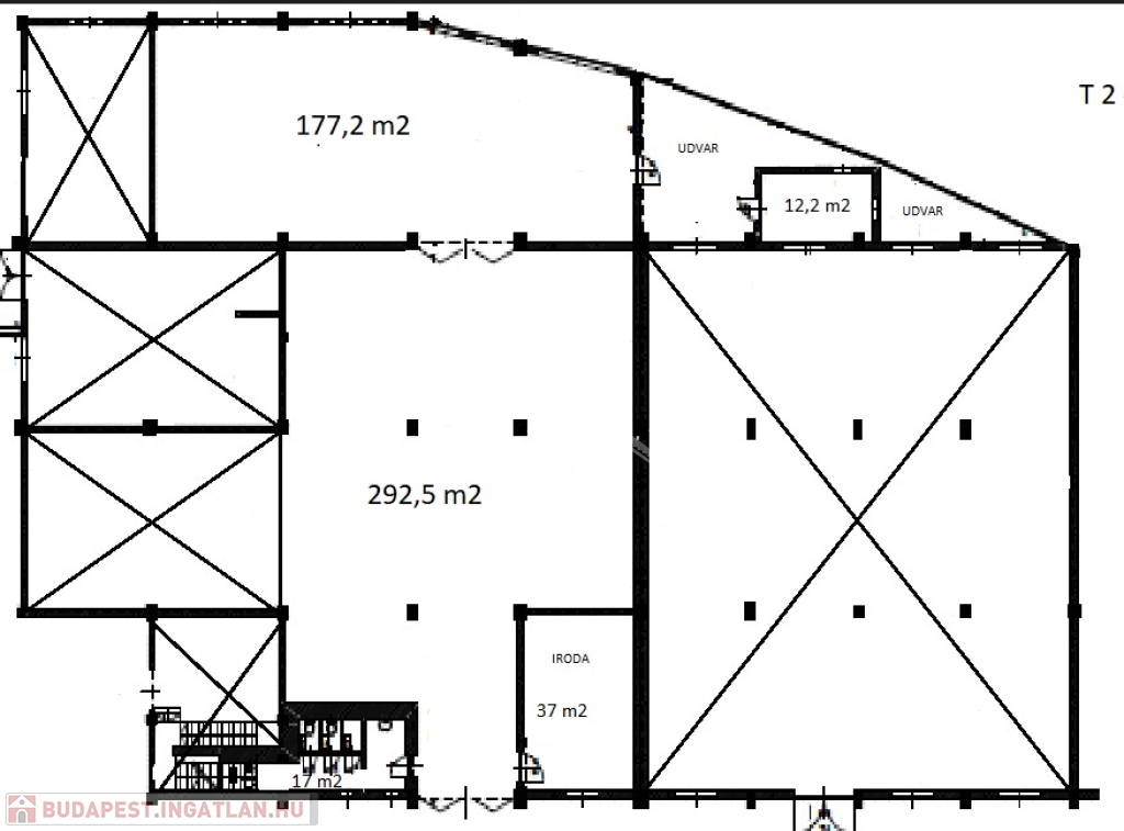
Budapest XXII. kerületének egyik kedvelt ipari parkjában kiadó 540 m2 alapterületű raktár – Iroda 177 m2 fűthető területtel rendelkezik.

Kiváló lehetőség olyan cégeknek, akik a raktározásukat és termelő + irodai tevékenységüket egy helyszínen szeretnék üzemeltetni.

Telephely kialakítása:
Iroda: 37 m2
Füthető raktár: 177 m2 - munkaterületnek
Raktár: 292,5 m2
Külső raktár:12,5 m2
Szociális helységek: 17,m2 mosdó - zuhanyzó
Saját kertrész: 81,5 m2

Bérleti díj: 3688 €
Fenntartási és üzemeltetési költséget tartalmazó bérleti díj 3688 € + almérők költsége

Bérleti idő: minimum 1 év.
Kaució: 2 havi bérleti díjnak megfelelő összeg.

Az M0-ás autópályától 1,5 m-re található iparitelepre, engedély nélkül behajthatnak a 40 t.kamionok és a teherautók.
Az iparitelep tömegközlekedéssel könnyen megközelíthető, telepen található étterem kávézó a munkavállalók napi kényelmét biztosítja. Parkolás a telep területén és az utcán biztosított.

A kiadó raktár azonnal bérbevehető!

Várjuk hívását!

Ipari ingatlan részletei

Ár: 3 688 Euro/hónap
Méret: 605 négyzetméter
Azonosító: 11344191
Irodai azonosító: 364141
Cím: Budafok 605 m² raktár-műhely-iroda
Ingatlan állapota: Átlagos
Jelleg: egyéb

Térkép


Így keressen budapesti ingatlant négy egyszerű lépésben. Csupán 2 perc, kötelezettségek nélkül!

Szűkítse a budapesti ingatlanok
listáját
Válassza ki a megfelelő
budapesti ingatlant
Írjon a hirdetőnek
Várjon a visszahívásra