Kiadó ipari ingatlan Budapest IV. ker 4 826 Euro

Leírás

Az M3-as autópálya és a Váci út közelében található raktárházunkban, földszintes csarnoképületben kínálunk bérelhető területeket, raktárakat, illetve irodákat. Ideális választás többek között komplex szállítmányozási megoldásokhoz.

Ipari területen, összesen 4845 m2 csarnoképületben szállítmányozási-, raktározási-, illetve irodai funkciók egyaránt megoldhatók, így azoknak is ideális, akik a vállalat főbb tevékenységi köreit egy központi helyszínre költöztetnék, vagy egy bemutatótermet is szeretnének ezeken felül kialakítani. Épületeinkben 24 órás őrzést biztosítunk.

Ár: 5,90 € /m2+ÁFA-tól
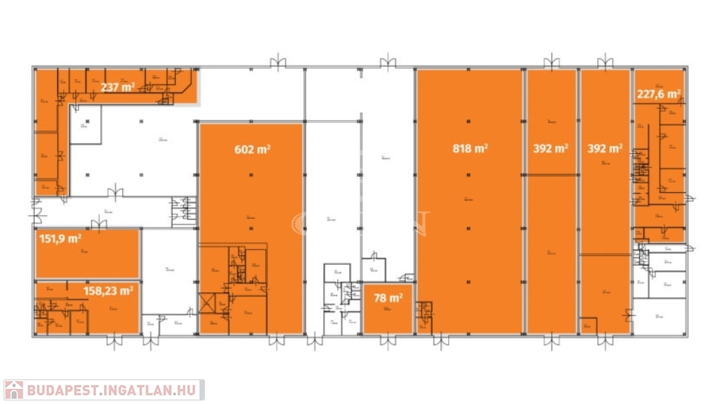
Teljes terület: 4.300 m2
Szabad Terület: 2.751 m2
Min. Bérelhető Terület: 152 m2

Az ingatlanon belül parkolók, raktárak, szerelőműhelyek, üzlethelyiségek találhatók.

További lehetőségek: 158 m2; 392 m2; 602 m2.

Fenntartási és üzemeltetési díj: 1,8 EUR+Áfa / m2 + almérők

Megközelítés:
Újpesten, található ipartelep a Váci útról és az M3-as autópályáról egyaránt megközelíthető gépkocsival vagy nagyobb teherjárművel is. Tömegközlekedéssel az M3-as metró Újpest-központ megállójától gyalog, a 30-as buszcsaláddal, illetve vonattal a Rákospalota megállótól gyalogosan, vagy kerékpárral egyaránt megközelíthető az ipartelep.

Szolgáltatások:
-24 órás telephely őrzés
-Parkolók

Ipari ingatlan részletei

Ár: 4 826 Euro/hónap
Méret: 818 négyzetméter
Azonosító: 11233205
Irodai azonosító: 352224
Cím: Ipari parkban 818 m² raktár kiadó
Ingatlan állapota: Átlagos
Jelleg: egyéb

Térkép


Így keressen budapesti ingatlant négy egyszerű lépésben. Csupán 2 perc, kötelezettségek nélkül!

Szűkítse a budapesti ingatlanok
listáját
Válassza ki a megfelelő
budapesti ingatlant
Írjon a hirdetőnek
Várjon a visszahívásra