Eladó vendéglátó egység Szigetszentmárton 148 500 000 Ft

Leírás

Eladó lakóház lakással és vendéglátóegységgel!

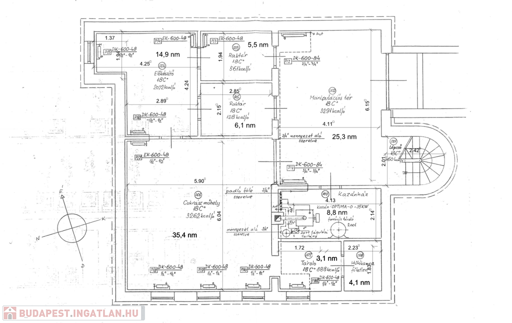
Szigetszentmártonban kínálunk megvételre egy jelenleg ételbárként üzemelő, tulajdoni lap szerint : kivett lakóház, udvar, tároló, cukrászműhely, cukrászda besorolású 312 nm alapterületű ingatlant 1218 nm-es telken.

Az ingatlan 1993-ban Porotherm téglából épült, 5 cm-es külső szigeteléssel.
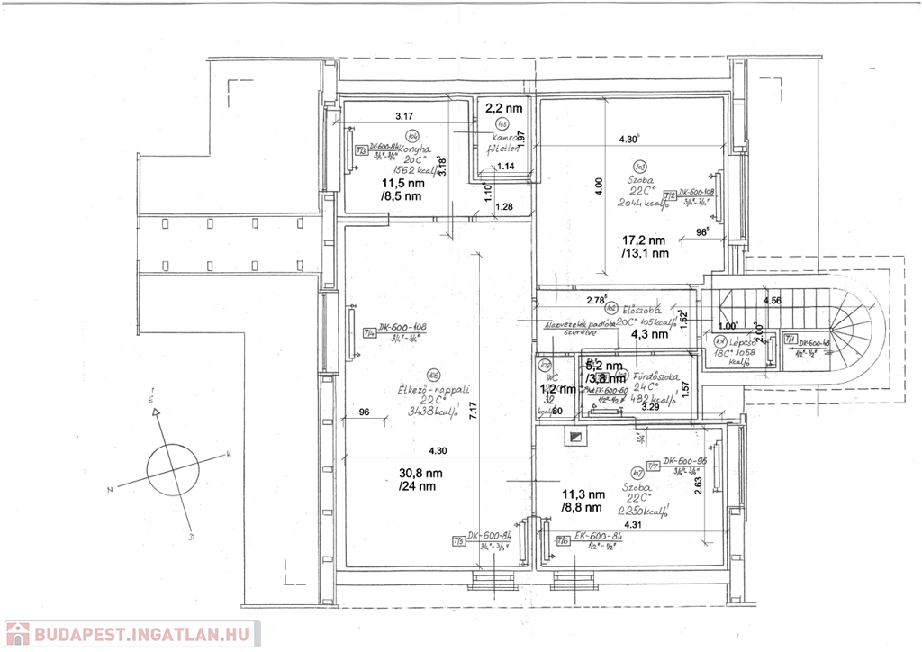
A földszinten melynek hasznos alapterülete: 106,6 nm + 40 nm terasz, és a pinceszinten 103,2 nm működik az ételbár, a tetőtérben egy 82,3 nm alapterületű lakás van kialakítva.

A lakás alapterülete 82,3 nm.
Beosztása-
- előszoba,
- nappali+ étkező,
- konyha,
- kamra,
- hálószoba,
- hálószoba,
- fürdőszoba,
- WC.
A lakásrészben 2021-ben történt felújítás:
- új burkolatok, fürdőszoba, konyhabútor új ajtókat kapott, új főzőlap,
sütő, elszívó,
- új klíma, új villanybojler,
- az eredeti fa, dupla thermo üvegezésű nyílászárókat átfestették.
A lakásnak külön mérőórái vannak.

2021-ben a termelő részben végzett felújítások:
- új műanyag nyílászárók, részleges padlófelújítás,
- hűtőkamra ajtaját cserélték, új aggregátor,

A fűtést és melegvizet gázkazán biztosítja radiátoros hőleadással.
- ipari gázóra és ipari áram van.
- az ingatlanban 2 db hűtő-fűtő klíma működik.

A telken található még egy 60 nm-es épület, 2 autónak garázs+ tároló, tetőszerkezetét 2020-ban felújították.

Az udvar térkövezett, több autónak beállási lehetőséget biztosítva.

Az ingatlannak két utcáról van bejárata.


Amivel segítjük az Ön ingatlanvásárlását:
- ingyenes hitelügyintézés,
- jogi háttér,
- földhivatali ügyintézés,
- energetikai tanúsítvány,
- a vevő számára az ingatlanközvetítés ingyenes.

Irodánk 30 éves szakmai tapasztalattal áll ügyfelei rendelkezésére!

Várom szíves megkeresését!

Vendéglátó egység részletei

Ár: 148 500 000 Ft
Méret: 312 négyzetméter
Azonosító: 11577460
Irodai azonosító: 389149
Cím: Ráckevei út
Ingatlan állapota:
Elhelyezkedés: Udvari

Egyéb jellemzők

  • Parkoló

Térkép


Így keressen budapesti ingatlant négy egyszerű lépésben. Csupán 2 perc, kötelezettségek nélkül!

Szűkítse a budapesti ingatlanok
listáját
Válassza ki a megfelelő
budapesti ingatlant
Írjon a hirdetőnek
Várjon a visszahívásra