Eladó vendéglátó egység Miskolc, Belváros, 99 800 000 Ft

Leírás

Energiatakarékos, rendkívül kis rezsijű hőszivattyús hibrid rendszerben fűthető!

Miskolc belvárosában kiváló helyen, a történelmi Kisavason, összesen 184+329 nm-es, téglából épült, cserépfedéses, 2 bejárattal rendelkező rendezvényház, két ágú pincerendszerrel eladó.

Fűtését hőszivattyúra kötött fan-coil rendszer biztosítja és szükség esetén, kiegészítésként egy kondenzációs gáz cirkó kazán is rendelkezésre áll. A fűtést a földszinten padlófűtés és fan coil készülék, az emeleteken fan-coil készülékek biztosítják. Az épület hűtése a hőszivattyúról a fan-coil készülékekkel történik. A pince meleg levegő keringetéssel fűthető.

A 17. században épült borház 2014-ben teljes újjáépítésen és bővítésen esett át, melyet extra műszaki és esztétikai tartalom, valamint kiváló anyag és kivitelezői minőség jellemez.
Főbb felújítások:
- tető teljes cseréje
- bővítés
- nyílászárók, beltéri ajtók és bejárati ajtó csere (mind Ropant prémium minőségű fa nyílászáró)
- fűtésrendszer korszerűsítés, hőszivattyú és kondenzációs gázkazán beépítés, teljes épületgépészet (villany, víz, gáz), tűzvédelmi rendszer kiépítése
- mosdók, konyha, pult kialakítása
- hideg-meleg burkolás
- pincerendszer teljes felújítása
- 10 cm-es dryvit rendszerű homlokzatszigetelés

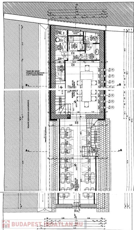
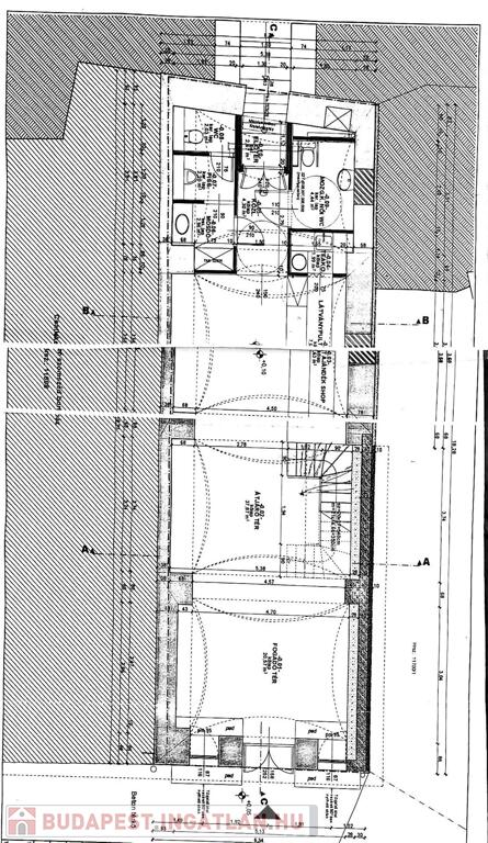
Helyiséglista:
- pince (két ág) 329 m2
- földszint (vendéglátó egység/mosdók/konyha) 87 m2
- emelet I. (konyha/tárgyaló/mosdók) 59 m2
- emelet II. (iroda/mosdó): 39 m2

Az ingatlan jelenleg rendezvényházként és irodaként is funkcionál, de szálláshelyként, vendéglátásra, borozóként, vagy prémium minőségű magánpinceként is hasznosítható. Működéshez szükséges engedélyekkel, berendezési tárgyakkal rendelkezik!

Ir.ár: 99,8 M.

A konyhai gépek/eszközök, és egyéb berendezési tárgyak igény szerint külön opcionálisan megvásárolhatóak.

További részletekért kérem, hogy keressen a megadott elérhetőségeim valamelyikén!

Vendéglátó egység részletei

Ár: 99 800 000 Ft
Méret: 184 négyzetméter
Azonosító: 11207918
Irodai azonosító: 4659
Cím: Kisavas Első sor
Városrész: Belváros
Ingatlan állapota: Felújított
Jelleg: fogadó
Elhelyezkedés: Udvari
Szintek: 2 szint + tetőtér
Tulajdonviszony: Tulajdonjog
Helyiségek: 8

Egyéb jellemzők

  • Berendezés
  • Főző konyha
  • Melegítő konyha
  • Parkoló

Térkép


Így keressen budapesti ingatlant négy egyszerű lépésben. Csupán 2 perc, kötelezettségek nélkül!

Szűkítse a budapesti ingatlanok
listáját
Válassza ki a megfelelő
budapesti ingatlant
Írjon a hirdetőnek
Várjon a visszahívásra