Eladó vendéglátó egység Budakeszi 209 990 000 Ft

Leírás

Budakeszin nagy forgalmú helyen, de parkosított környezetben tovább bővíthető étterem nagy kerttel eladó.

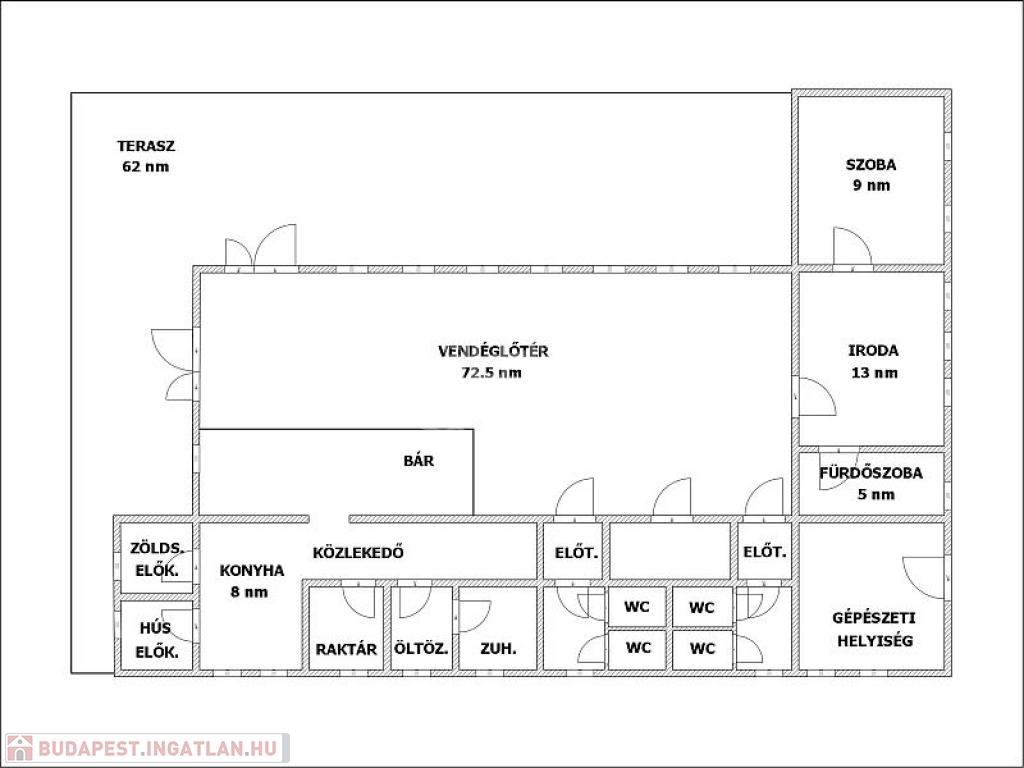
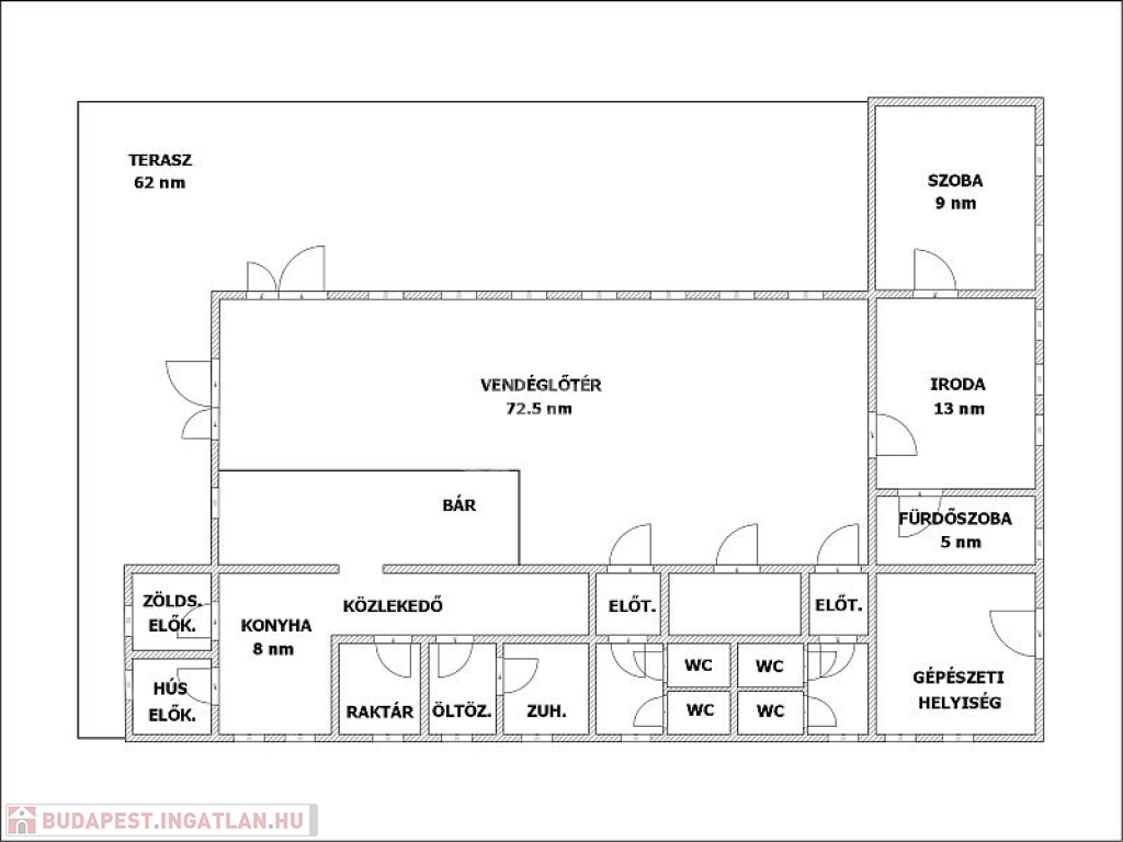
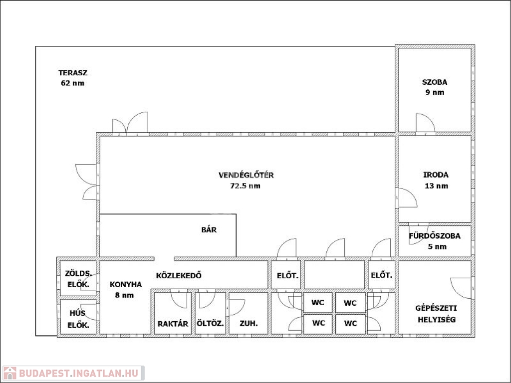
A jó állapotú étterem 2004-ben épült, könnyűszerkezetes, fedett bruttó alapterülete 165 nm, + részben fedett terasz 60 nm. HACCP tanúsítvánnyal rendelkező vendéglátóhely, jelen kialakításában 45-50 fő befogadására alkalmas.

Az épületben van egy 30 nm-es iroda fürdőszobával, mely önálló lakrésznek is használható.

A telek 1951 nm-es, automata öntözőrendszerrel ellátott.

Parkolási lehetőség: 8 gépkocsi részére zárt parkoló.

A terület maximális beépíthetősége 25% , azaz 487 nm. A területen a vendéglátó építményen kívül létesíthető sportolási célú, valamint az azzal szorosan összefüggő kereskedelmi, szállás-szolgáltató létesítmények.

Vendéglátó egység részletei

Ár: 209 990 000 Ft
Méret: 165 négyzetméter
Azonosító: 11430438
Irodai azonosító: 326188
Cím: Barackos
Ingatlan állapota:
Elhelyezkedés: Udvari

Egyéb jellemzők

  • Parkoló

Térkép


Így keressen budapesti ingatlant négy egyszerű lépésben. Csupán 2 perc, kötelezettségek nélkül!

Szűkítse a budapesti ingatlanok
listáját
Válassza ki a megfelelő
budapesti ingatlant
Írjon a hirdetőnek
Várjon a visszahívásra