Eladó üdülő/nyaraló Velence 64 000 000 Ft

Leírás

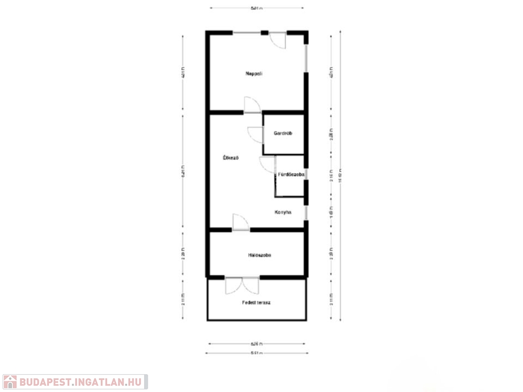
4828. Velencefürdőn, vízparthoz közeli utcában, egész évben lakható, 2022-ben felújított, 63 m2 nettó alapterületű, 2 szoba, konyha-étkezős, kandallóval-klímával, 3 db Nobo panellel fűthető, 20 cm-es külső hőszigeteléssel (falakon és födémen is), 11 m2-es fedett terasszal, lemezgarázs tárolóval rendelkező lapostetős iker hétvégi ház, 381 m2-es telekrésszel eladó. Ár: 64 MFt

Üdülő/nyaraló részletei

Ár: 64 000 000 Ft
Méret: 63 négyzetméter
Azonosító: 11508555
Irodai azonosító: 380587
Cím: Vízpart közeli ikernyaraló
Telek: 381 Négyzetméter
Építőanyag: Tégla
Jelleg: nyaraló
Építési év: 21-50 éves
Elhelyezkedés: Udvari
Egész szobák: 2

Egyéb jellemzők

  • Garázs

Térkép


Így keressen budapesti ingatlant négy egyszerű lépésben. Csupán 2 perc, kötelezettségek nélkül!

Szűkítse a budapesti ingatlanok
listáját
Válassza ki a megfelelő
budapesti ingatlant
Írjon a hirdetőnek
Várjon a visszahívásra