Eladó telek/földterület Veszprém 9 900 000 Ft

Leírás

NAGY ÜVEGFAL, TERASZ ÉS ERKÉLY A DÉLI PANORÁMA FELÉ!
ELADÓ PANORÁMÁS TELEK CSATÁR KÖNNYEN MEGKÖZELÍTHETŐ ZSÁKUTCÁJÁBAN!

A látványtervek a HÉSZ szerint készültek, tájékoztató jelleggel!

FIGYELEM!
Az ár IRÁNYÁR, tehát ALKUKÉPES!


A TELEK:
Övezeti besorolása: Mk-02
Beépítés módja: (SZ), mint szabadon álló
Legnagyobb beépítettsége: 3% - 2x57 m2 (földszint+tetőtér)
Az épületmagasság megengedett legnagyobb mértéke: 3 m
Kialakítható legkisebb telek területe: 1.500 m2


Kertes mezőgazdasági terület (Mk)
Mk-02 övezet területére vonatkozó előírások:

(1) Csatár-hegyen a beépíthető legkisebb földrészlet területe 720m2.

(2) 1500 m2-nél kisebb földrészleten legfeljebb 3%-os beépítéssel, egy darab legfeljebb 30 m2-es
gazdasági épület és egy darab, legfeljebb a gazdasági épület alapterületével megegyező méretű
pinceszinti helyiség helyezhető el.

(3) 1500 m2-nél nagyobb földrészleten legfeljebb 3%-os beépítéssel, egy darab legfeljebb 60 m2-es
gazdasági épület és egy darab, legfeljebb a gazdasági épület alapterületével megegyező méretű
pinceszinti helyiség helyezhető el.

(4) Az övezet földrészletein az épületeket szabadonállóan, minimum 5,0 m-es előkerttel és min. 3,0
m-es oldalkerttel kell elhelyezni.

(5) Az övezet földrészletein tilos a természetes talajszint 1,5 m-nél nagyobb mértékú megváltoztatása.


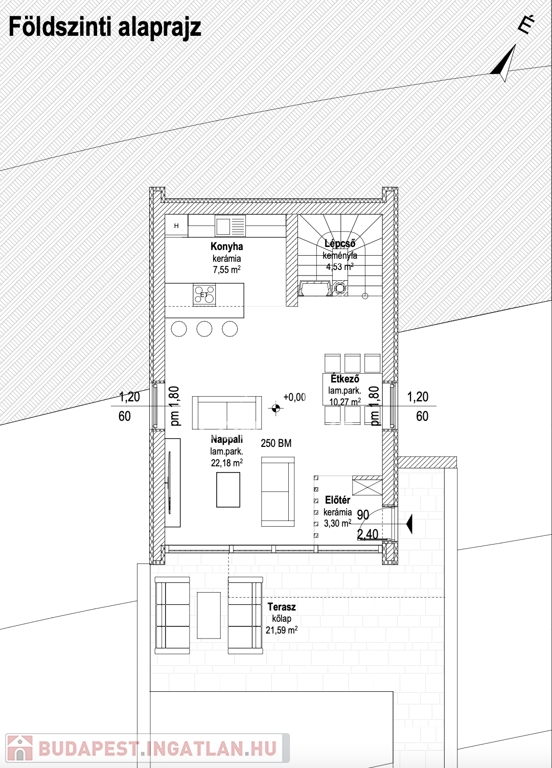
A TERVEK SZERINT:
A főbejárat oldalról lenne - ahol a kinyúló erkély fedést is ad a bejáratnak -, így nem bontja meg a nagy üvegfelületet.
Az ajtón belépve egy kis ELŐSZOBA és cipős szekrény kapna kialakítást. A NAPPALIT csak egy fa oszlopsor választja el, hogy az üvegfelület felől minél kisebb legyen az árnyékolás.
A KONHYA hátul kapna kialakítást. Elég mélyen van és a föld alatt, de a nagy üvegfelületeken keresztül bőven jut be természetes fény. Két oldalra került be két kis ablak is, hogy minél több fény jusson be és lehessen szellőztetni keresztbe is.
A KANDALLÓ a lépcső alá kerül beépítésre, a kémény pedig a lépcső orsóterében van. A kémény mögött lehet egy légcsatorna az orsótérben, amiben a meleg levegő fel tud menni a felső szintre is, így adott esetben mind a 2 szint fűtött lenne!
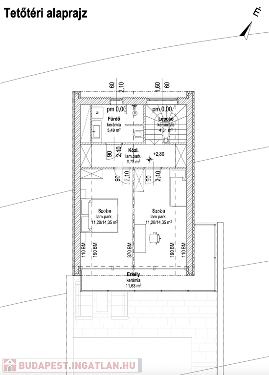
Fent 2 SZOBA kapott kialakítást, mind a kettő erkély kapcsolattal. A közlekedő két végén, két beépített szekrény lenne elhelyezve.
A FÜRDŐSZOBÁBAN épített zuhanyzó + tágas mosdó + WC és mosógép kerülne beépítésre, a természetes fény pedig FÖLDIG ÉRŐ ABLAKON jönne be!
A tetőtérben nyitott fedélszéket terveztek. Nem lenne lezárva padlásfödémmel, hanem felmenne a belmagasság a taréjszelemenig. A nagy üvegfelület igazából csak így nézne ki jól, így a gerinc közelében a tetőtéri belmagasság 3,70 m lenne. Szép tágas és fényes!


Amennyiben az ingatlan megvásárlásához el kell adnia jelenlegi otthonát, úgy annak és a teljes folyamatnak a lebonyolításában is állok rendelkezésre!

További információkért forduljon hozzám bizalommal, hívjon a megadott telefonszámon - akár hétvégén is!


TOVÁBBI SZOLGÁLTATÁSAINK:

- Megbízható ügyvédi háttér
- INGYENES, FÜGGETLEN hitelügyintézés
- INGYENES, FÜGGETLEN biztosítási tanácsadás
- Energetikai tanúsítvány és ingatlan értékbecslés készítése
- Közművek és szolgáltatók átírása
- Birtokbaadás lebonyolítása
- Felújítások/Teljes kivitelezés
- Riasztó rendszerek kiépítése
- Kert- és tereprendezés
- Ingatlan takarítás
- Költöztetés

10 ÉVES SZAKMAI TAPASZTALATTAL!


#gonahome #tegyelprobara #keressbizalommal #mindenamiingatlan

Telek/földterület részletei

Ár: 9 900 000 Ft
Méret: 2 379 Négyzetméter
Azonosító: 11591348
Irodai azonosító: 322984
Cím: Nefelejcs utca
Telek: 2379 Négyzetméter
Jelleg: belterület

Így keressen budapesti ingatlant négy egyszerű lépésben. Csupán 2 perc, kötelezettségek nélkül!

Szűkítse a budapesti ingatlanok
listáját
Válassza ki a megfelelő
budapesti ingatlant
Írjon a hirdetőnek
Várjon a visszahívásra