Eladó telek/földterület Demjén 240 000 000 Ft

Leírás

Páratlan lehetőség a természet és a gyógyító erő közelségében – Demjénben, a Barlangfürdő szomszédságában!

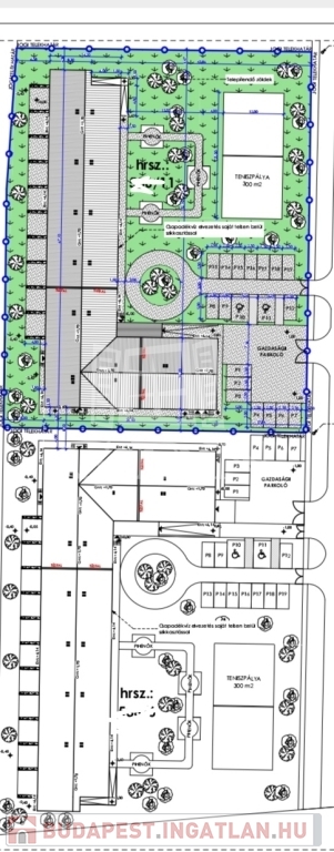
Eladó egy különleges adottságú két építési telekből álló, összesen kb 10.000 m²-es belterületi terület, közvetlenül a gyógyvizéről híres Demjéni Barlangfürdő mellett, panorámás, csendes, gyógyító energiákkal átitatott környezetben.

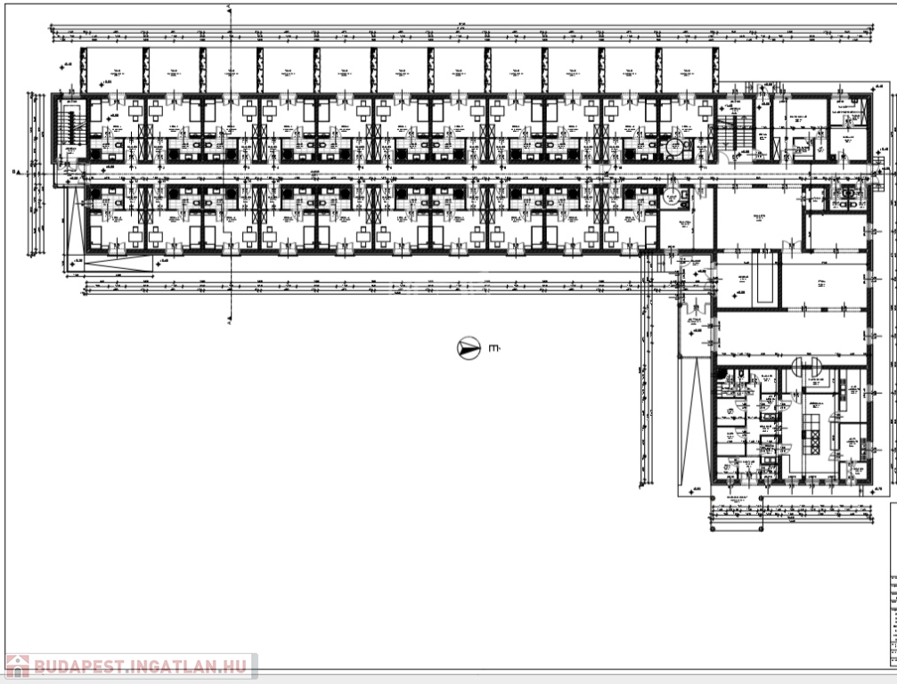
A területek már meglévő, érvényes építési engedéllyel rendelkeznek – idősek otthonára tervezve:
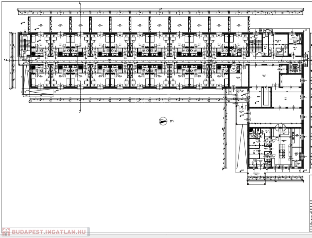
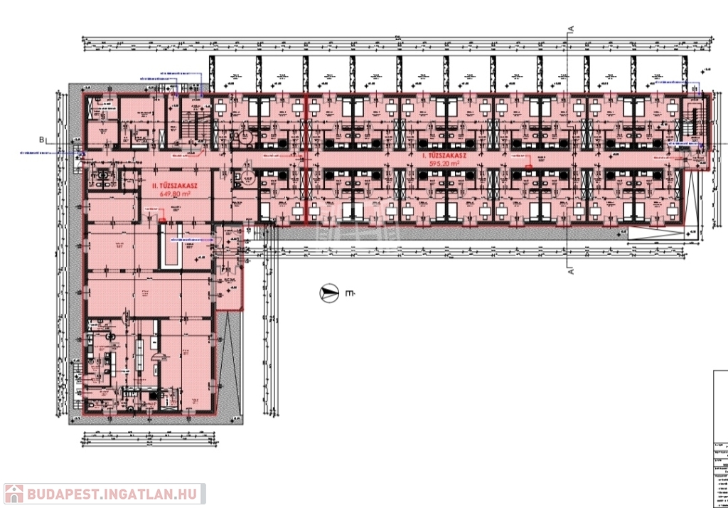
• az egyik 47,
• a másik 50 szobás intézményre kapott jóváhagyást.
Mindkét projekt részét képezi egy-egy 300 m²-es teniszpálya, valamint gazdasági parkoló.

Telekterületek:
• 4.672 m² és 4.469 m²
Övezeti besorolás: Lke-2 – kertvárosias lakóterület
• Beépíthetőség: 30%
• Szintterületi mutató: 0.8
• Épületmagasság max: 7,5 m
• Beépítési mód: szabadon álló

Tervezett épületek:
• 1.343 m² és 1.248 m²-es alapterület
• 7,22–7,24 m építménymagassággal

Ez a lehetőség nem csupán egy ingatlan – hanem egy hívás. Hívás azoknak, akik érzik a küldetést: időseknek adni méltó, békés, gyógyító életteret a természet ölelésében.
Itt minden adott egy korszerű, emberközpontú otthon megvalósításához – akár gyógyító központként, akár különleges elvonuló helyszínként is értelmezhető.

Csak egyben eladó!
Budapesti ingatlan vagy gépjármű beszámítása megoldható, korrekt áron.

Ne hagyja ki!
Hívjon bátran, a hét minden napján elérhető vagyok – rugalmas megtekintési lehetőséggel!

Telek/földterület részletei

Ár: 240 000 000 Ft
Méret: 9 141 Négyzetméter
Azonosító: 11509167
Irodai azonosító: 365047
Cím: Szabadság utca
Telek: 9141 Négyzetméter
Besorolás: Építési telek
Csatorna: Utcában
Gáz: Utcában
Jelleg: belterület
Villany: Utcában
Víz: Utcában

Térkép


Így keressen budapesti ingatlant négy egyszerű lépésben. Csupán 2 perc, kötelezettségek nélkül!

Szűkítse a budapesti ingatlanok
listáját
Válassza ki a megfelelő
budapesti ingatlant
Írjon a hirdetőnek
Várjon a visszahívásra