Eladó telek/földterület Balatoncsicsó 43 000 000 Ft

Leírás

BALATONCSICSÓN BALATONI PANORÁMÁS, SZÉP FEKVÉSŰ, KÖZMŰVESÍTETT, BEÉPÍTHETŐ KÜLTERÜLET ELADÓ

Balatoncsicsó Szent György-hegyen vált eladóvá ez a csodás balatoni panorámával rendelkező, szép természeti környezetben lévő, 5340 m2-es beépíthető külterület, amely jogerős építési engedéllyel rendelkezik (2021. június 30. óta)

A nemzeti park szomszédságában fekvő telek jó minőségű murvás úton közelíthető meg, amely a Dörgicsét Mencshellyel összekötő közúttól kb. 600 m hosszú, szintemelkedés nélküli, télen-nyáron jól járható.

Közművek: vezetékes víz és áram bevezetésre került, csatorna nincs

A terület fém támrendszerrel ellátott, új telepítésű olaszrizling fajtájú szőlővel telepítve.

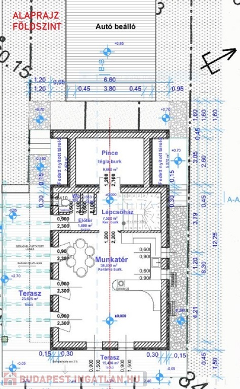
A tervezett gazdasági épület 146 m2 nettó alapterületű, háromszintes, pince + földszint + tetőtér kialakítású.

Ha új tulajdonosa nem ezt szeretné megvalósítani, akkor a rendezési terv Mk2 borvidéki kertes övezetének szabályozása szerint építhető be: egy gazdasági épület és egy földdel borított boltpince helyezhető el

- beépíthetőség legnagyobb mértéke 3% a 2700 m2-nél nagyobb telkek esetében, (max. 100 m2) szabadonálló beépítési móddal

- max. építménymagasság 4 m


Hamarosan új építési szabályzat várható, amely a tervek szerint szigorítást tartalmaz, min. 5000 m2-es telek lesz csak beépíthető.

Tulajdoni lapon: külterület, szőlő 4905 m2, rét és rom 435 m2 Adásvétele kifüggesztésköteles.

Elhelyezkedése: Balatonakali strand 8 km, Dörgicse és Mencshely központja 2 km távolságra érhető el

Építész- és ingatlanközvetítő irodánk minden hiteles szakmai segítséget meg tud adni, mellyel segíteni tudjuk döntését.
Kérje az ingatlan részletes tájékoztató anyagát!
Kövesse Balatoniingatlanguru facebook és balatoni_ingatlanguru instagram oldalunkat.

Balatoni ingatlanguru – több mint közvetítő

Telek/földterület részletei

Ár: 43 000 000 Ft
Méret: 5 340 Négyzetméter
Azonosító: 11571726
Telek: 5340 Négyzetméter
Jelleg: külterület
Villany: Telken belül

Így keressen budapesti ingatlant négy egyszerű lépésben. Csupán 2 perc, kötelezettségek nélkül!

Szűkítse a budapesti ingatlanok
listáját
Válassza ki a megfelelő
budapesti ingatlant
Írjon a hirdetőnek
Várjon a visszahívásra