Eladó panzió Vonyarcvashegy 110 000 000 Ft

Leírás


Befektető, beruházók! - két egységből álló: üdülőépület és apartmanház A Gold Balaton Home ingatlaniroda megvételre kínálja a 731200029-es sorszámú, építés alatt álló VONYARCVASHEGYI „ÜDÜLŐÉPÜLET és APARTMANHÁZAT"

Kizárólag a Gold Balaton Home kínálatában!

A turizmus /nyaraltatás/ kiszolgálására épülő, két egységből álló épületegyüttes a település déli oldalán, jól megközelíthető helyen, 1500 méterre található a méltán népszerű Lido strandtól.

 

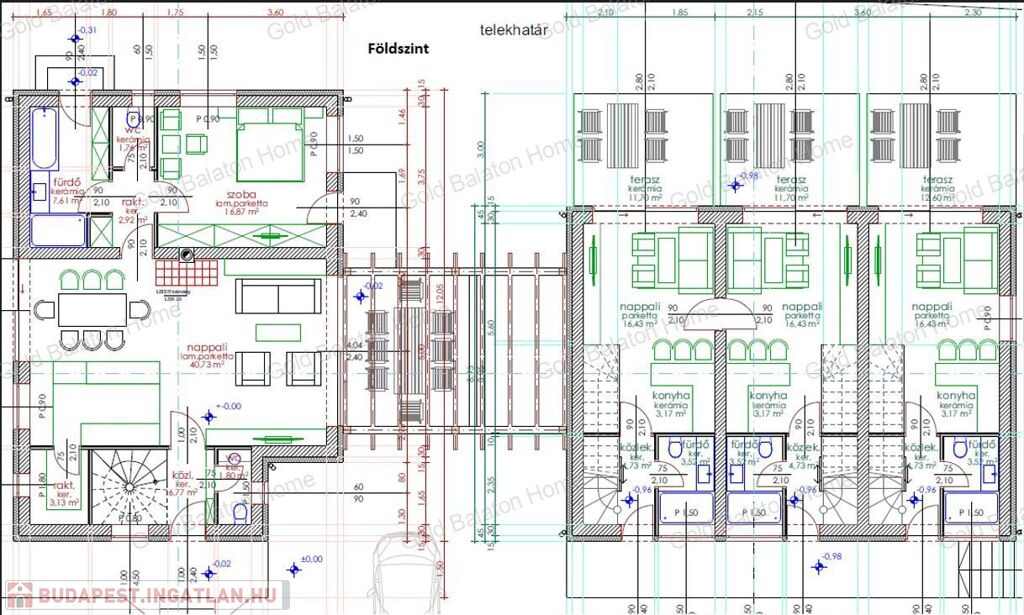
Műszaki paraméterek:

- 2019-ben elkezdett építés, porotherm 30-as falazóblokkból

- fehér színű, fokozott hőszigetelésű, műanyag nyílászárók 2 rétegű üvegezéssel

- tervezet fűtése: gáz-cirkó kazán, radiátoros hőleadással

- az épületek fedése,(jelenleg az apartmanház) piros színű betoncseréppel

- üdülőépület 40%-os készültségi fokban, az apartmanház szerkezetkész állapotban

- mindkét épület, külön közüzemi mérőórákkal (víz, gáz, villany)

 

Az ingatlan egyéb jellemzői:

- körbe határolt építési telek

- tervezett gépkocsi beállók, a három apartmanból álló, külön bejáratú apartmanház déli oldalán

- teljes terv és műszaki dokumentáció a vételárban

- megnyitott e napló (lejárt)

Az ingatlan ára a jelenlegi készültségi fokra értendő és tartalmazza a több millió forint értékű építőanyagot, mely az épületben található. Amennyiben hirdetésem felkeltette érdeklődését, kérem keressen bizalommal!

 

Irodánk szolgáltatásai igény esetén: ügyvéd, energetikai tanúsítvány, hitelügyintézés, értékbecslés, statikus, földmérő, belsőépítész

Biztonság, szakértelem - GOLD BALATON HOME - „Élj ott, ahol mások nyaralnak”

Panzió részletei

Ár: 110 000 000 Ft
Méret: 280 négyzetméter
Azonosító: 11607091
Irodai azonosító: 731200029
Telek: 855 Négyzetméter
Építőanyag: Tégla
Fűtés jellege: Cirkó
Ingatlan állapota: Szerkezetkész
Jelleg: szálloda
Komfort fokozat: Dupla komfort
Építési év: Új építésű
Telekterület típusa: Négyzetméter

Így keressen budapesti ingatlant négy egyszerű lépésben. Csupán 2 perc, kötelezettségek nélkül!

Szűkítse a budapesti ingatlanok
listáját
Válassza ki a megfelelő
budapesti ingatlant
Írjon a hirdetőnek
Várjon a visszahívásra