Eladó panzió Alsóörs 1 490 000 000 Ft

Leírás

A Balaton északi partján eladásra kínálunk egy 4 *os szállodát, étteremmel, wellness és konferenciaközponttal, teljes berendezéssel és személyzettel együtt.
Fontosabb információk:

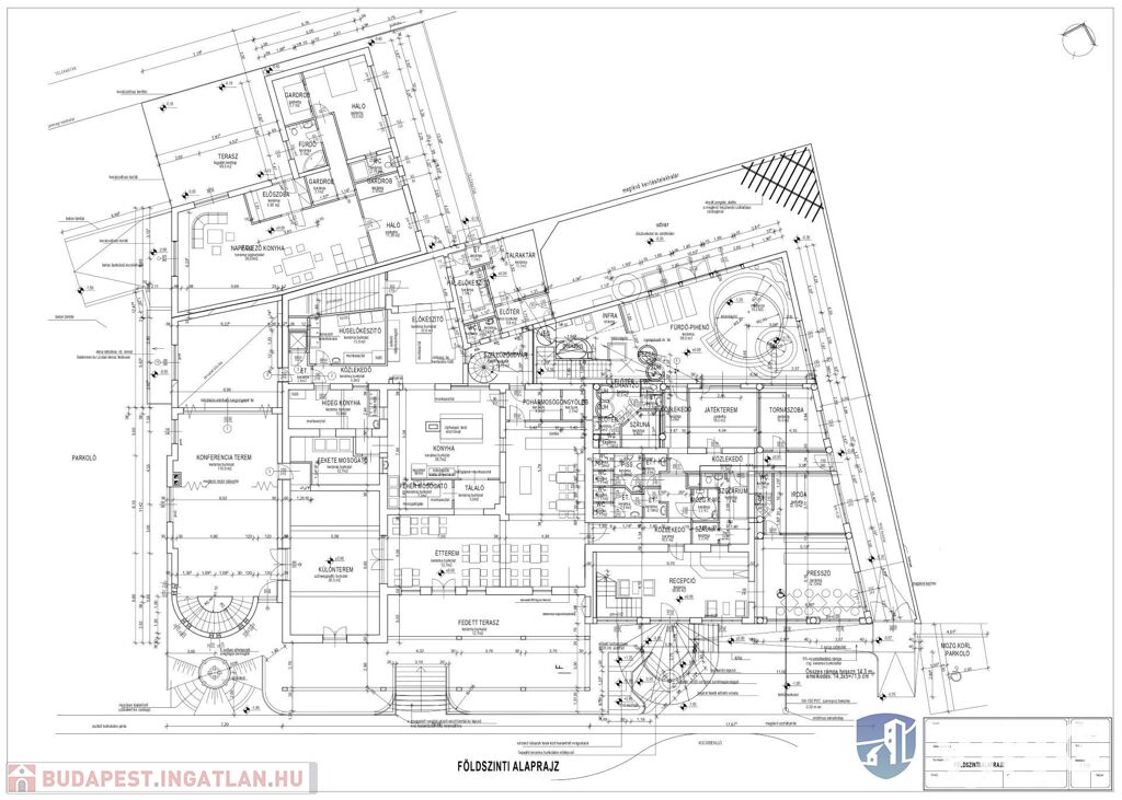
Étterem konyhával és rendezvényközponttal:
- Fedett térben 175 fő, kültéren 80 fő ellátására képes
- Konyhája, és kiszolgáló helyiségei teljes berendezéssel: hűtőkamrákkal, gépekkel, edényekkel, és bútorzattal együtt eladók.
- Rendezvényterme 2 részből áll, és igény esetén összenyitható.

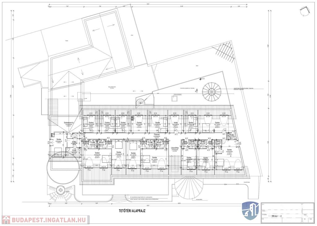
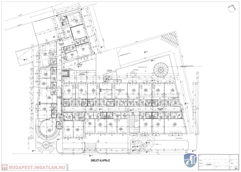
Szálloda ****_:
- 31 szobával: ~100 fő fogadása biztosított.

Szobái fürdőszobával:
-kétágyas
-családi
-superior kétágyas
-queen deluxe -szobai wellnessel
-valamint nagyobb légterű, ill. 2 légterű 2x2 szobás lakrészekkel

Wellness-Spa:
-élménymedence 8 féle élmény elemmel
-pezsgőfürdő 3 féle masszázs elemmel
-csillagfényes finn szauna
-aromaterápiás gőzfürdő
-merülő medence
-különleges só pezsgőfürdő és parajdi sókamra
-masszázsok, aromafürdők
-pihenőszoba nyugágyakkal
-mediterrán terasz napozóágyakkal és napernyőkkel.
-szolárium

Ezen kívül személyzeti lakrészek: női-férfi (szobákkal, fürdőszobával, és konyhával)

Parkolás: 30-40 autó részére zárt parkolóban.

Pincéjében: mosodával, saját mosó-szárító-és vasalógépekkel, több tárolóhelyiséggel, és a berendezéshez tartozó készletekkel.

Energia ellátása napelemekkel, gázzal, hőszivattyúval, fűtése és hűtése (fan coil) rendszerrel megoldott.
További információkért forduljon hozzám bizalommal!
(További kínálatunkat keresse a VING hivatalos weboldalán.)

Panzió részletei

Ár: 1 490 000 000 Ft
Méret: 2 700 négyzetméter
Azonosító: 11393006
Irodai azonosító: 596864
Ingatlan állapota: Átlagos
Jelleg: szálloda
Telekterület típusa: Négyzetméter

Így keressen budapesti ingatlant négy egyszerű lépésben. Csupán 2 perc, kötelezettségek nélkül!

Szűkítse a budapesti ingatlanok
listáját
Válassza ki a megfelelő
budapesti ingatlant
Írjon a hirdetőnek
Várjon a visszahívásra