Eladó lakás Zalaegerszeg 93 700 000 Ft

Leírás

ZALAPART Residence

Általános Ismertető:

A lakópark egyedülálló adottságokkal rendelkező lokációban épül, közel a belvároshoz, a Zala utcában, közvetlen a Zala folyó partján, a belvárostól mindössze 8 perc séta távolságra, gépkocsival mindössze 2 percre. A közel 1 hektáros, természetközeli, nyugodt, zöld környezetben épülő lakópark épületei egymástól kellő távolságra helyezkednek el, biztosítva ezzel a nyugodt és intim életteret.

A projekt keretein belül 4 épület épül, A,B,C és D lépcsőházakkal, összesen 48 lakással.

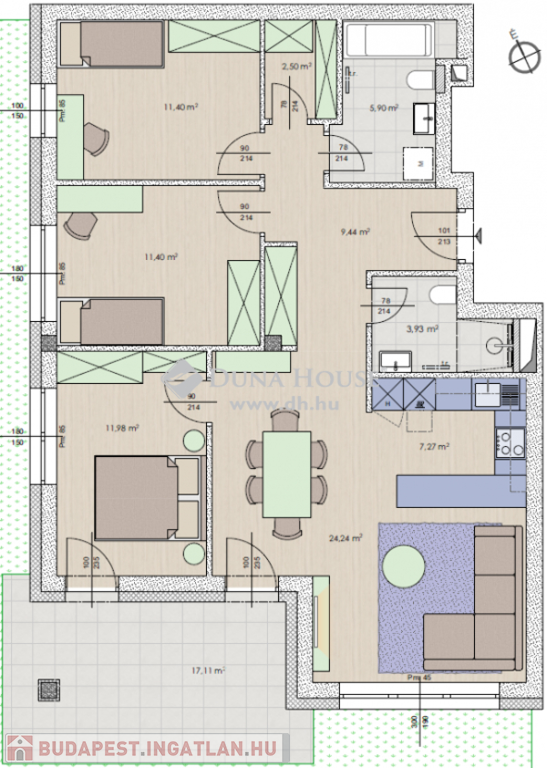
Az A és B épület a Zala utca felől, a telek felső részén fekszik, 2-3 szobás lakásokkal, 54-73 m2 közötti alapterülettel. Szintenként 4 lakás található, valamennyi lakás déli tájolású, a Zala folyó felé néz. A fő tervezési szempont a minél nagyobb hálószobák, az amerikai konyhás kialakítás és a jól használható terasz volt.
A C épület a telek alsó részén, a Zala folyó partján fekszik, itt nagyobb, 3-4 szobás, 65-89 m2 alapterületű lakások kerülnek kialakításra, szintenként 3 lakással, kényelmes teraszokkal, a földszinti lakások saját kertkapcsolattal rendelkeznek.
A D épület szintén a telek alsó részén, a Zala folyó partján fekszik, itt 2-3-4 szobás, 49-96 m2 közötti lakások kerülnek kialakításra, szintenként 3 lakással, kényelmes teraszokkal. A földszinti lakások saját kertkapcsolattal rendelkeznek.
A lakások értékállóságát és kényelmét a városon belüli páratlan elhelyezkedés, az átgondolt tervezés, a minőségi anyagok használata, a nagyméretű, intim teraszok, a lift, a megújuló energia, egyedi és közös tárolók, fedett beállók, garázsok biztosítják. Minden épületben kerékpár- és babakocsi tároló kerül kialakítása, külön tárolók vásárlására is van lehetőség.

Az épületek egymástól kényelmes távolságra helyezkednek el, a beépítés szellős, nem túlépített. Az alacsony beépítési mutató mellett a telek nagy része zöldfelület, fákkal, növényekkel betelepített, a lenti épületek között közösségi udvar, park kerül kialakítása. A parkolók térvilágítást, az épületek közötti sétányok díszkivilágítást kapnak mozgás- és alkonykapcsolós vezérléssel.

Sok társasházban gondot jelentenek a szűk parkolók és garázsok, ezt figyelembe véve a ZalaPart Residence garázsai és a parkolói kényelmes méretűek, az átlagosnál nagyobbak. A felszíni parkolók 2,6-2,8 m szélesek, a garázsok 16-19 m2 közöttiek, széles kapuval felszereltek. Minden lakáshoz vásárolható felszíni parkoló, illetve ezen felül saját garázs is. Lehetőséget biztosítunk fedett felszíni parkoló vásárlására is, illetve elektromos töltőpont előkészítése is kérhető a garázsokhoz és egyes felszíni parkolókhoz. Kialakításra kerül 1 db társasházi, közösségi elektromos autó töltőpont.

Építészeti kialakítás, gépészet:

A műszaki tartalomnál a fő szempontok az energiatakarékosság, az alacsony rezsi és a magas műszaki színvonal voltak.

Az épületek téglából, helyenként vasbeton szerkezetekből, monolit beton födémmel épülnek, magastetős kialakítással, tetőtéri lakás nem készül. A külső falakra minimum 15-20 cm-es hőszigetelés készül, a nyílászárók 3 rétegű üvegezésű, melegperemes műanyag szerkezetek, kívül fóliázottak, belül fehér színűek .Minden homlokzati nyílászáróhoz vakolt redőnytok kerül beépítésre, a hálószobákban rovarhálóval felszerelt kézi mozgatású, alumínium redőnyökkel. Minden nyílászáróhoz kerül elektromos kiállás a redőnymozgatáshoz, így a motoros mozgatás is könnyen megoldható lesz.

A ház fűtése minden lakásban egyedileg szabályozható, levegő-víz rendszerű, négycsöves H tarifás hőszivattyús padlófűtés. A lakásokban az alapfelszereltség részeként, minden szobában Fan-COIL rendszerű, hűtő-fűtő klíma kerül kiépítésre, amely szintén a hőszivattyúról üzemel, így kültéri egységek nem kerülhetnek a házak homlokzatára. A lépcsőházak temperált fűtöttek, a garázsok külön villanyórával felszereltek. Minden épülethez napelem előkészítés is készül.

A lakások között és a lépcsőház és a lakás között hanggátló falszerkezet kerül beépítésre, a födémben hangszigetelő réteg kerül az aljzatbeton alá. Ezen hanggátló falak elé ahol szükséges, gipszkarton vagy Ytong előtétfalat terveztünk hangszigeteléssel. A lakásokat megközelítő folyosó a lépcsőháztól távol helyezkednek el, a liftek nem határosak lakással.

Belsőépítészet:

Minden lakástípusra egyedi belsőépítészeti terv készült, amely érinti a bútorozást, a villamos kapcsolók, dugaljak elhelyezését, a fürdők berendezését és burkolatkiosztását és a belső, egyedi hangulatot, design-t. Az alapos tervezésnek köszönhetően a leendő lakónak már nem kell külön kitalálnia a funkcionális elrendezést, a lakások aszerint lettek finomhangolva, hogy jól élhetőek legyenek és megfeleljenek a mai kor követelményeinek, trendeknek, és ezáltal hosszú távon is értékállóak legyenek.

Mire számíthat, ha a ZalaPart Residence-t választja új otthonául?
alacsony energiafelhasználású, modern, értékálló otthona lesz
magas műszaki felszereltségre (hőszivattyús fűtés, klíma, modern nyílászárók, redőnyelőkészítés, igényes burkolatok)
autójával védett helyen parkolhat, tágas, kényelmes parkolóhelyeken
parkosított, körbekerített udvarra
biztonságos beléptető rendszerre elektromos kapuval (nem sorompóval)
minimum 10 m2-es hálószobákra
2 fürdőszobás lakások közül is választhat
D-i, vagy Ny-i tájolású, Zala folyóra és a városra néző kilátásra
fedett, nagyméretű teraszokra
jól bútorozható, illetve saját gardróbos lakásokra
Amennyiben fontos Önnek a nyugodt, csendes és belváros közeli lokáció, a magas műszaki színvonal és az átgondolt alaprajzi kialakítás, belsőépítészet, akkor a ZalaPart Residence tökéletes otthona lehet, vagy akár kiváló befektetése!

Bővebb információkkal, műszaki részletekkel, fizetési ütemtervvel várjuk irodánkban, ahol egy személyes találkozó keretében bővebb betekintést adunk a projekt és az egyes épületek, lakások részleteit illetően!

Referencia szám: PR085768/LK/23859

Lakás részletei

Ár: 93 700 000 Ft
Méret: 96 négyzetméter
Azonosító: 11541252
Irodai azonosító: PR085768/LK/23859-4960124
Emelet: Földszint
Építőanyag: Tégla
Fűtés jellege: Hőszivattyú
Ingatlan állapota: Épülő
Komfort fokozat: Összkomfort
Építési év: Új építésű
Kilátás: udvari
Egész szobák: 4

Egyéb jellemzők

  • Erkély
  • Garázs
  • Lift

Térkép


Így keressen budapesti ingatlant négy egyszerű lépésben. Csupán 2 perc, kötelezettségek nélkül!

Szűkítse a budapesti ingatlanok
listáját
Válassza ki a megfelelő
budapesti ingatlant
Írjon a hirdetőnek
Várjon a visszahívásra