Eladó lakás Vámosszabadi 56 070 000 Ft

Leírás

Vámosszabadi Szitásdomb II lakóparkban ajánlom figyelmébe ezt az új projektet:
35 lakásos társasház, 3 szint, prémium anyagok, megbízható kivitelező!

Jelen hirdetésben az első emeleten, az L1-1 számú lakást szeretném bemutatni:
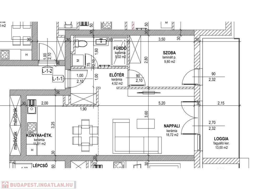
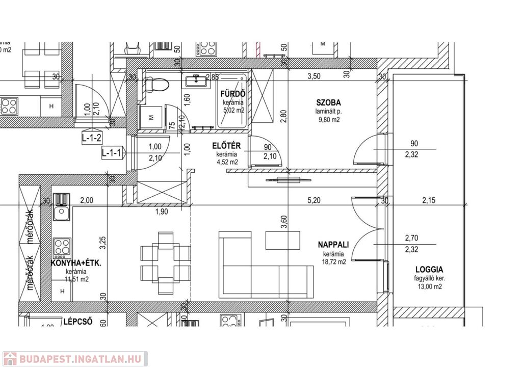
Az ingatlan 49,57 m²-es lakótérrel rendelkezik, egy 13m2-es erkély kapcsolattal.
A lakás jól átgondolt kialakítása magába foglal egy tágas amerikai konyhás nappalit, egy hálószobát, előszobát és egy fürdőszobát. A pontos elrendezését a fotók között feltöltött alaprajz mutatja be.
A lakás emeltszintű fűtéskész állapotban kerül átadásra, így a befejezés az Ön a saját elképzelése szerint valósulhat meg.

Az épületről:
- teherhordó- és térelhatároló falszerkezetek: POROTHERM 30 N+F falazóelem
- lakáselválasztó teherhordó falazat: LEIERTHERM 25/30 AKU hanggátló tégla
- válaszfalak: POROTHERM 10 N+F falazóelem, 10 cm vastagságban
- homlokzati hőszigetelés: 15 cm AUSTROTHERM AT-H80
- homlokzati nyílászárók: VEKA 76AD kívül-belül fehér szerkezetek, redőnnyel
- fűtés központilag, levegő-víz hőszivattyú teleppel, hőleadás mennyezetfűtéssel, klimatizálás mennyezet hűtéssel biztosított
- lakások egyedi hőmennyiségmérővel, szobatermosztáttal, fürdőszobában padlófűtéssel, törölközőszárítóval

A lakáshoz opcionálisan vásárolható tároló helyiség, illetve felszíni parkoló is.
Várható átadás: 2026. ősz

Az ingatlan elhelyezkedése kiváló, hiszen Győr központja és az autópályafelhajtó is könnyen elérhető.
Új, modern házakkal beépített környék, a városi és vidéki buszközlekedés is elérhető.
Ha egy modern, saját igényei szerint alakítható otthont keres, amely csendes, mégis jól megközelíthető helyen található a városhoz közel, akkor hívjon!
Több szabad lakás is van még a projektben, ha ez pont nem az igényeinek megfelelő, mutatom a többit is!
További információért és megtekintésért keressen bizalommal.
(További képekért és információkért kérem hívjon!)

Lakás részletei

Ár: 56 070 000 Ft
Méret: 50 négyzetméter
Azonosító: 11572818
Irodai azonosító: 996079
Erkély mérete: 13.00 négyzetméter
Építőanyag: Tégla
Fűtés jellege: Hőszivattyú
Ingatlan állapota: Szerkezetkész
Komfort fokozat: Összkomfort
Egész szobák: 2
Nappalik: 1

Egyéb jellemzők

  • Erkély
  • Garázs
  • Klíma
  • Lift
  • Pince
  • Kertkapcsolat

Így keressen budapesti ingatlant négy egyszerű lépésben. Csupán 2 perc, kötelezettségek nélkül!

Szűkítse a budapesti ingatlanok
listáját
Válassza ki a megfelelő
budapesti ingatlant
Írjon a hirdetőnek
Várjon a visszahívásra