Eladó lakás Tata 74 990 000 Ft

Leírás

Költözzön megújuló energiával fenntartható új SZABADONÁLLÓ lakásba SAJÁT KERTKACSOLATTAL a közkedvelt Levendulalakópark szomszédságába.

CSOK PLUSZ HITEL (3%-os hitel)!!!
-ILLETÉKMENTESSÉG!!
-HŐSZIVATTYÚS FŰTÉS!!
Nem szeretne bajlódni a felújítással??
Esetleg kertre is vágyik, ahol a gyermekei szaladgálhatnak?
Mindez saját ízlés szerint, családias, nyugodt környéken keresi?
Mi minden kérdésére most megoldást nyújtunk:
Ha Ön is még időben jelentkezik, akkor most Önné lehet Tata teljesen új parcellázású részén épülő földszintes, SZABADONÁLLÓ 70 nm-es 3 SZOBA +NAPPALIS sorházi lakás SAJÁT KERTTEL!!!!
A most kialakuló lakóparkban 7 telken 2-2 egységből álló (összesen 14 db lakás) szabadon álló sorházi lakások kerülnek kialakításra. (CSOK + HITELRE alkalmas)
A projekt kitalálásánál a legfontosabb szempont volt a legkorszerűbb építési technológia és korszerű anyagok felhasználásán túl, kényelmes, tágas helységek kerüljenek kialakításra. Amit a legkorszerűbb gépészeti megoldások használatával (hőszivattyús fűtő rendszer), minőségi építőanyagok beépítésével fognak megvalósítani melyet a mai kor elvárásainak megfelelő energiafelhasználás fog jellemezni.
Az lakások fűtését lakásonként telepített szabályozható levegő hőszivattyúk és a hozzá tartozó beltéri egységek, valamint a meleg víz tárolására alkalmas puffer tartályok fogják, biztosítják.
Az ingatlant olyan egyedi praktikus megoldással tervezték, mely biztosan az Ön kényelmét fogja szolgálni, de ha ezentúl is van még ötlete, kívánsága, most még azt is megteheti, mint azt is ,hogy a saját elképzelése szerint választhatja ki a szanitereket és burkolatokat.

-1-es lakás:73,79nm + 16nm terasz (nappali + 3 hálószoba )+ 485 nm saját kertkapcsolat
Vételár:74.990.000Ft(mely 5% ÁFÁ-t tartalmaz)+ 2 db autóbeálló hozzá.1.250.000Ft,-/beálló=77.490.000Ft
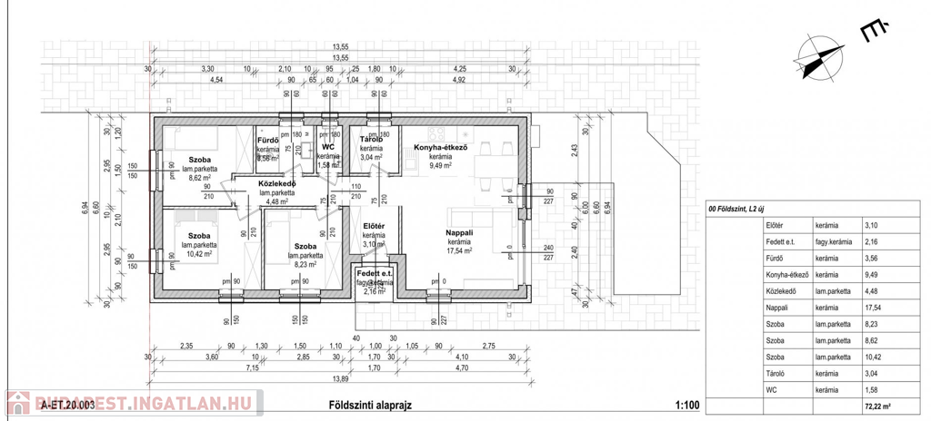
-2-es lakás: 72,22nm + 16nm terasz (nappali + 3 hálószoba)+673m saját kertkapcsolat
Vételár:74.990.000Ft(mely 5% ÁFÁ-t tartalmaz)+ 2 db autóbeálló hozzá.1.250.000Ft,-/beálló=77.490.000Ft


Műszaki átadás:E-napló megnyitásától számitott 12 hónap

-Teljes körű, INGYENES bank független tanácsadás és ügyintézés!
-Szerződés előkészítése
-CSOKPLUSZ HITEL ügyintézés!
egy helyen az Ön kényelme érdekében…
Ha Ön se szeretne lemaradni erről a kitűnő ajánlatról, akkor hívjon már most a részletekért!
Szabó Szilvia
Tel.:06 70 367 76 36

Lakás részletei

Ár: 74 990 000 Ft
Méret: 70 négyzetméter
Azonosító: 11533210
Irodai azonosító: 9156
Cím: Tata
Emelet: Földszint
Építőanyag: Kérdezzen rá a hirdetőtől »
Fűtés jellege: Egyéb
Ingatlan állapota:
Építési év: Új építésű
Egész szobák: 4

Egyéb jellemzők

  • Erkély

Így keressen budapesti ingatlant négy egyszerű lépésben. Csupán 2 perc, kötelezettségek nélkül!

Szűkítse a budapesti ingatlanok
listáját
Válassza ki a megfelelő
budapesti ingatlant
Írjon a hirdetőnek
Várjon a visszahívásra