Eladó lakás Szigethalom 81 990 000 Ft

Leírás

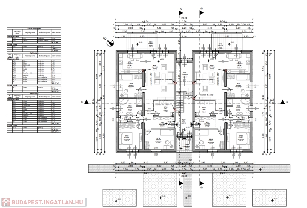
Szigethalom központi részén négy egységből álló "ikerház jellegű" " B" jelű földszinti hőszivattyús lakás kertkapcsolattal eladó!

KIVÁLÓ KIVITELEZŐ, VERSENYKÉPES ÁRON, KIVÁLÓ OTTHONT AJÁNL ÖNNEK! CSOK +, H-TARIFA, HŐSZIVATTYÚ!

A kertkapcsolatos otthon nettó 109,97 négyzetméteres, ehhez + terasz 11,25 m2 kapcsolódik valamint 300 nm saját használatú kert.
Helyiségei: nappali 30,36 m2, szoba 12,25 m2, szoba 13,65 m2, szoba 13,65 m2, konyha 10,5 m2, fürdő szoba 8,75 m2, előtér 5,27 m2, háztartási helyiség 7,07 m2, wc 1,93 m2, folyosó 5,59 m2, közlekedő 1,4 m2, terasz 11,25 m2.

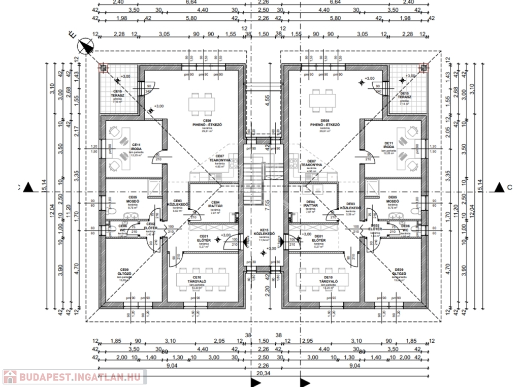
A lakásokat zárt lépcsőházból érjük el, a földszinten két lakás, az emeleten két iroda kerül kialakításra.

Az otthon beton alapra, 30-as síkra csiszolt tégla falazattal, monolit beton födémmel, beton cserép fedéssel épül meg.
Az épület külső nyílászárói (ablakok) műanyag szerkezetűek 6 légkamrás 3 rétegű hőszigetelt üvegezéssel, elektromos redőnnyel, szerelve. A bejárati biztonsági ajtó több ponton záródó.
A homlokzaton 12 cm GRAFITOS Dryvit rendszerű, a zárószinten födémben 20 cm kőzetgyapot, míg a padlóban 12 cm lépésálló nikecell szigetelés kerül beépítésre.
Fűtése/ hűtése, meleg vízellátása hőszivattyúval (levegő) történik padlófűtéssel. A H tarifa kedvező üzemeltetési költséget biztosít.
Burkolatok választhatóak 10,000 ft/nm felette a vevő kompenzál. Szaniterek keretösszegig választhatók.
A kert alap kertrendezéssel kerül átadásra, viacolorozott autóbeállóval és személybejáróval.

Műszaki tartalom ízelítő:
-vasalt beton sávalap,
-30 nf síkra csiszolt tégla falazat
-tégla válaszfalak
-monolit beton födém
-nyílászárók 6 légkamrásak elektromos redőnnyel szereltek, szúnyoghálóval ellátottak,
-tető beton cseréppel fedett
-fűtés hőszivattyúval, padlófűtéses hőleadással
-burkolatok 10.000ft/nm választhatóak
-4 klíma lakásonként
-H tarifa
-lakásokhoz saját kert tartozik
-minden közmű benn kivétel gáz,
-homlokzaton 12 cm dryvit rendszerű szigetelés
-padlón 12 cm lépésálló szigetelés

A burkolatok, szaniterek választhatóak, a kivitelező igyekszik minden vásárlói igényt kielégíteni.

A jelű földszinti lakás 300 m2 kert,109,97 m2 lakótér ára: 81.990.000 ft
B jelű földszinti lakás 300 m2 kert,109,97 m2 lakótér ára: 81.990.000 ft
C jelű emeleti iroda 7,12 m2 terasszal 103,67 m2 hasznos térrel: 76.200.000 ft
D jelű emeleti iroda 7,12 m2 terasszal 103,67 m2 hasznos térrel: 76.200.000 ft

Várható átadás 2026. május. Várom megtisztelő hívását!

FINANSZÍROZÁS:
Nálunk mindent egy helyen intézhet:
- hivatalos ingatlanközvetítés;
- szakszerű jogi képviselet;
- profi CSOK-PLUSZ, és hitelügyintézés: 16 Bank, több mint 100 konstrukció;

A részletes adatvédelmi tájékoztató folyamatosan elérhető a gdn ingatlan adatvédelmi oldalon.

Lakás részletei

Ár: 81 990 000 Ft
Méret: 110 négyzetméter
Azonosító: 11567053
Irodai azonosító: 387612
Cím: Pest megye
Emelet: Földszint
Építőanyag: Tégla
Fűtés jellege: Hőszivattyú
Ingatlan állapota: Kitűnő
Komfort fokozat: Összkomfort
Építési év: Új építésű
Tulajdonviszony: Saját
Kilátás: kertre néző
Egész szobák: 4

Egyéb jellemzők

  • Erkély
  • Garázs
  • Lift
  • Pince
  • Tároló

Térkép


Így keressen budapesti ingatlant négy egyszerű lépésben. Csupán 2 perc, kötelezettségek nélkül!

Szűkítse a budapesti ingatlanok
listáját
Válassza ki a megfelelő
budapesti ingatlant
Írjon a hirdetőnek
Várjon a visszahívásra