Eladó lakás Székesfehérvár 102 808 000 Ft

Leírás

Aurum Palace – A belváros arany középpontja

L-004596. Székesfehérvár belvárosában, frekventált, megújuló, folyamatosan fejlődő városrészén, modern, letisztult, jó elosztású, erkélyes, új építésű társasházi lakások eladók.

A kiváló lokációnak köszönhetően minden lényeges szolgáltatás, könnyen és gyorsan elérhető. Az épület fontos jellemzője, hogy teljesen akadálymentes.

A lakások a mai kor műszaki követelményeinek és igényeinek maximálisan eleget téve, kerülnek átadásra.

A 4 szintes, 2 lépcsőházból álló társasházban 51 korszerű lakás kapott helyet. A biztonságos parkolást az 55 férőhelyes mélygarázs biztosítja, melyek külön vásárolhatók meg.

Nagy múltú, megbízható és tapasztalt ingatlanfejlesztő jegyzi a társasház építését, számtalan referenciaépülettel rendelkezik a városban.

Átadás: 2026 december

Főbb műszaki paraméterek:
- rugalmas fizetési ütemezés
- illeték fizetés 2027-ban (kérjen bővebb információt)
- központi hőszivattyús fűtés, egyedi méréssel, padlón keresztüli hőleadással
- fürdőszobában törölközőszárító radiátor
- 2 db 13 személyes schindler lift a teremgarázs szinttől indulva
- Zöld Otthonnak megfelelő energetikai besorolás
- minőségi anyagok felhasználása
- elektromos alumínium redőny + szúnyogháló (toló erkély ajtóra pliszé szúnyoghálóval)
- nyílászárók 3 rétegű üvegezéssel
- választható hideg- és melegburkolat, hangszigetelt CPL beltéri ajtók
- központi vízlágyító rendszer az egész társasházban
- központi klímarendszer, amely minden helyiségben külön szabályozható és önállóan elszámolható

Az eladási ár tartalmazza: Csaptelepek | Klíma | Padlófűtés | Szaniterek | Választható – burkolatok, beltéri ajtók | Elektromos redőny + Szúnyogháló

Az eladási ár NEM tartalmazza: Beépített bútorok | Konyhabútor | Lámpatestek | Riasztó szerelvény

Lakástípus:
» 2. emelet:
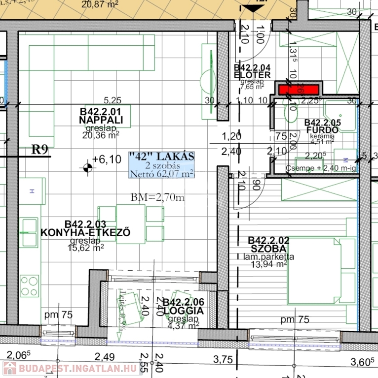
B42. lakás: 62,07nm
Elrendezés: konyha + étkező - nappali, hálószoba, előtér, fürdő/wc egy helyiségben, terasz 4,37nm
Eladási ár: 102.808.000,- Ft


A vásárláshoz, a jelenleg aktuális családok otthonteremtésére vonatkozó összes támogatás igénybe vehető (CSOK + /illetékmentes a vásárlás/, Jelzáloghitel, Babaváró kölcsön….)

Ha felkeltette érdeklődését, hívja irodánkat bizalommal, éljen ingyenes, személyre szabott hitelügyintézés szolgáltatásunkkal. Segítünk továbbá adásvételhez szükséges ügyvédi közreműködésben, energetikai tanúsítvány, valamint értékbecslés elkészítésében.

For English details please send us a message or an e-mail, thank you

Lakás részletei

Ár: 102 808 000 Ft
Méret: 62 négyzetméter
Azonosító: 11565570
Irodai azonosító: 387363
Cím: Falköz-Távírda sarok
Emelet: 2. emelet
Építőanyag: Tégla
Fűtés jellege: Hőszivattyú
Ingatlan állapota: Kitűnő
Komfort fokozat: Összkomfort
Tulajdonviszony: Saját
Kilátás: utcai
Egész szobák: 2

Egyéb jellemzők

  • Erkély
  • Garázs
  • Lift
  • Pince
  • Tároló

Térkép


Így keressen budapesti ingatlant négy egyszerű lépésben. Csupán 2 perc, kötelezettségek nélkül!

Szűkítse a budapesti ingatlanok
listáját
Válassza ki a megfelelő
budapesti ingatlant
Írjon a hirdetőnek
Várjon a visszahívásra